Warszawa: 888 889 661
ul. Brylowska 2/3B
Kielce: 692 024 827
ul. Kozia 3a/1
pl

Kielce, Uroczysko, Klonowa

69.12 m2 Pokoje: 3 10 300 PLN/m2 711 936 PLN

Opis oferty

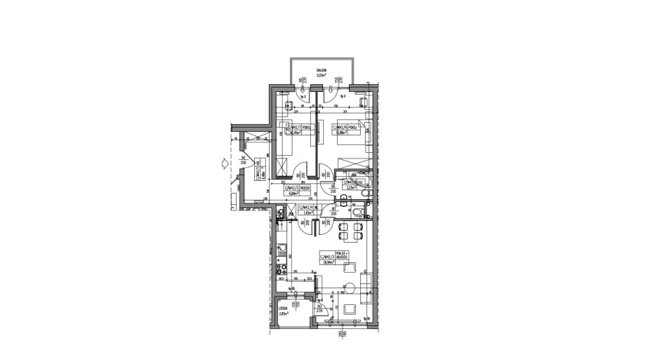
Na sprzedaż 3-pokojowe mieszkanie, o pow. 69,12 m2, dostępne na III piętrze budynku, zlokalizowanego w nowoczesnej inwestycji położonej przy ul. Klonowej, w sąsiedztwie Zalewu Kieleckiego i lasu/parku nad zalewem. Mieszkanie jest oferowane w standardzie deweloperskim. 

W skład mieszkania wchodzi:
- salon z aneksem kuchennym (26,94 m2),
- 2 pokoje (13,88 m2; 10,45 m2),
- łazienka (3,23 m2), 
- WC (1,45 m2),
- hol (6,48 m2),
- komunikacja (6,69 m2).

Do lokalu przynależy loggia o pow. 2,83 m2 oraz balkon o pow. 5,03 m2. 

Ogrzewanie i ciepła woda z sieci miejskiej.

Inwestycja zlokalizowana jest w spokojnej części Kielc, blisko terenów rekreacyjnych. Składać się będzie z jednego budynku o zróżnicowanej wysokości. Klatka A gdzie znajdować się będą lokale usługowe oraz mieszkalne jest z III piętrami natomiast klatka B i C stanowi wyłącznie cześć mieszkalną to IV piętra.   

W budynku łącznie zaprojektowano 51 mieszkań, 9 zespołów pokojowych i 3 lokale usługowe oraz halę garażową w części podziemnej z 44 miejscami postojowymi, komórkami lokatorskimi i boksami gospodarczymi. Budynki zostaną wyposażone w cichobieżne windy. 
 
Możliwość zakupu miejsca postojowego w hali garażowej w cenie 50 000 PLN i komórki lokatorskiej w cenie 5 000 PLN/m2.

Termin zakończenia inwestycji: II kwartał 2026 r.

 
>> Kupujący zwolniony z kosztów obsługi biura i podatku PCC <<

Sprzedaż inwestycji prowadzi biuro PROPERCO.pl - Kielce, ul. Kozia 3A/1.

Dane kontaktowe do agenta: Krzysztof Jakubowski  Tel: 888 889 568 E-mail: krzysztof.jakubowski@properco.pl

Informacje ogólne

  • Nr oferty
    PRP-MS-75949
  • Rodzaj
  • Lokalizacja
    Kielce, Klonowa
  • Dzielnica
    Uroczysko
  • Rodzaj budynku
    budynek wielorodzinny
  • Pow. całkowita [m2]
    69.12
  • Piętro
    3p
  • Liczba pięter w budynku
    4
  • Cena:
    711 936 PLN
  • Cena za m2
    10 300 PLN

Nieruchomości

Liczba pięter w budynku
4
Rodzaj mieszkania
Jednopoziomowe
Okna
PCV
Balkon
jest
Liczba balkonów
2
Powierzchnia użytkowa [m2]
69.12
Rok budowy
2026
Winda
tak
Technologia budowlana
beton
Stan lokalu
deweloperski
Instalacje
Taknowe

Pomieszczenia

Pokoje
3
Wysokość pomieszczeń
0
Liczba WC
1
Liczba przedpokoi
1
Kuchnia
Typ pomieszczenia
aneks kuchenny - połączony z salonem
Lazienka
Typ pomieszczenia
osobno z wc
Wc
Liczba
1
Przedpokoj
Liczba
1
PROPERCO sp. z o.o. sp.k
Osoba
do kontaktu
Krzysztof Jakubowski +48 888 889 568 krzysztof.jakubowski@properco.pl

Nr oferty: PRP-MS-75949

Dlaczego my?

Pomagamy w załatwianiu formalności
Pomagamy w załatwianiu formalności
Pomagamy w finansowaniu
Pomagamy w finansowaniu
Profesjonalne sesje zdjęciowe
Profesjonalne sesje zdjęciowe
Oferujemy home staging
Oferujemy home staging