Warszawa: 888 889 661
ul. Brylowska 2/3B
Kielce: 692 024 827
ul. Kozia 3a/1
pl

Busko-Zdrój,

104.08 m2 Pokoje: 3 9 100 PLN/m2 947 128 PLN

Opis oferty

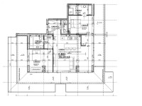
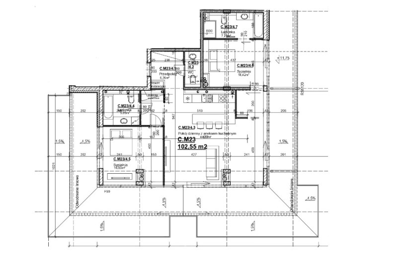
Na sprzedaż nowe mieszkanie w standardzie deweloperskim o pow. 104,08m2 zlokalizowane na IV piętrze w IV piętrowym budynku z 2023 roku w Busku-Zdroju.

W skład nieruchomości wchodzą:
- pokój dzienny z aneksem kuchennym,
- dwie sypialnie,
- dwie łazienki,
- WC,
- przedpokój.

Do mieszkania przynależy duży taras o pow. 118m2. Ekspozycja okien wschód-północ-zachód.
Ogrzewanie z sieci miejskiej.

Mieszkanie w stanie deweloperskim, istnieje możliwość zakupu miejsca postojowego w hali garażowej w kwocie 50 000 zł oraz komórki lokatorskiej za dodatkową opłatą.


Inwestycja zlokalizowana jest w uzdrowiskowej miejscowości Busko-Zdrój, niedaleko parku zdrojowego, tężni, dworca autobusowego. 

Osiedle składa się z trzech budynków mieszkalnych, w których zaprojektowano komfortowe mieszkania o metrażach od 32m2 do 115m2 oraz części usługowo-handlowej ze strefą Wellness, Medical & Fitness, a także restaurację i lokale usługowe. Adres strony internetowej, o którym mowa w art. 19a ust. 3 ustawy z dnia 20 maja 2021 r. o ochronie praw nabywcy lokalu mieszkalnego lub domu jednorodzinnego oraz Deweloperskim Funduszu Gwarancyjnym to mieszkanialokum (kropka)pl. Adres strony został ujęty fonetycznie.


Inwestycja oddana do użytkowania.

„Mieszkanie w stanie deweloperskim. Prezentowana wizualizacja jest propozycją aranżacji wnętrza i nie stanowi projektu.”
>>Kupujący zwolniony z kosztów obsługi biura i podatku PCC.
Wynagrodzenie biura pokrywa strona sprzedająca<<

Dane kontaktowe do agenta: Agata Grela Tel: 692-929-191 E-mail: ag@properco.pl
For service in English call Agata Grela at +48 692-929-191, e-mail: ag@properco.pl


-------

For Sale: Apartment with an area of 104.08m² located on the 4th floor of a new, four-story building in Busko-Zdrój.

The property includes:

  • Living room with a kitchenette,
  • Two bedrooms,
  • Two bathrooms,
  • WC,
  • Hallway.

The apartment comes with a large terrace of 118m². The windows face east, north, and west. Heating is provided by the municipal network.

The apartment is in a developer state, with the option to purchase a parking space in the garage for an additional fee.

The development is located in the spa town of Busko-Zdrój, near the spa park, saline graduation towers, and the bus station.

The residential complex consists of three buildings, which feature comfortable apartments ranging from 32m² to 115m², as well as a commercial and service area with a Wellness, Medical & Fitness zone, a restaurant, and service premises. The website address referred to in Article 19a, paragraph 3 of the Act of 20 May 2021 on the protection of the rights of purchasers of residential premises or single-family houses and on the Developer Guarantee Fund is mieszkanialokum(dot)pl. The website address has been written phonetically.

The development is ready for occupancy.

>>The buyer is exempt from office service fees and PCC tax.
The seller covers the office fee.<<

For service in English call Agata Grela at +48 692-929-191, e-mail: ag@properco.pl

Informacje ogólne

  • Nr oferty
    PRP-MS-75941
  • Rodzaj
  • Lokalizacja
    Busko-Zdrój
  • Rodzaj budynku
    blok
  • Pow. całkowita [m2]
    104.08
  • Piętro
    4p
  • Liczba pięter w budynku
    4
  • Cena:
    947 128 PLN
  • Cena za m2
    9 100 PLN

Nieruchomości

Liczba pięter w budynku
4
Rodzaj mieszkania
Jednopoziomowe
Okna
PCV
Balkon
taras
Powierzchnia użytkowa [m2]
104.08
Rok budowy
2023
Winda
tak
Technologia budowlana
mieszana
Stan lokalu
deweloperski
Instalacje
Taknowe
Gaz
jest
Woda
jest
Dojazd
asfalt
Ogrzewanie
miejskie
Usytuowanie
narożne

Pomieszczenia

Pokoje
3
Wysokość pomieszczeń
0
Liczba łazienek
2
Liczba WC
1
Pokoj
Powierzchnia
44,60 18,42 16,60
Podłogi
wylewka
Kuchnia
Typ pomieszczenia
aneks kuchenny - połączony z salonem
Rodzaj kuchni
aneks kuchenny
Lazienka
Powierzchnia
7,79 5,85
Typ pomieszczenia
nowa
Liczba
2
Glazura
bez glazury
Podłogi
wylewka
Wc
Powierzchnia
2,91
Liczba
1
PROPERCO sp. z o.o. sp.k
Osoba
do kontaktu
Agata Grela 692 929 191 ag@properco.pl

Nr oferty: PRP-MS-75941

Dlaczego my?

Pomagamy w załatwianiu formalności
Pomagamy w załatwianiu formalności
Pomagamy w finansowaniu
Pomagamy w finansowaniu
Profesjonalne sesje zdjęciowe
Profesjonalne sesje zdjęciowe
Oferujemy home staging
Oferujemy home staging