Warszawa: 888 889 661
ul. Brylowska 2/3B
Kielce: 692 024 827
ul. Kozia 3a/1
pl

Daleszyce, Suków

132.39 m2 Pokoje: 4 4 494 PLN/m2 595 000 PLN

Opis oferty

Na sprzedaż nowoczesny dom w stanie deweloperskim – Suków.

Na sprzedaż komfortowy dom jednorodzinny w stanie deweloperskim, o powierzchni całkowitej 132,39 m² (powierzchnia użytkowa 88,49 m²), zlokalizowany w miejscowości Suków, na działce o powierzchni 895 m².

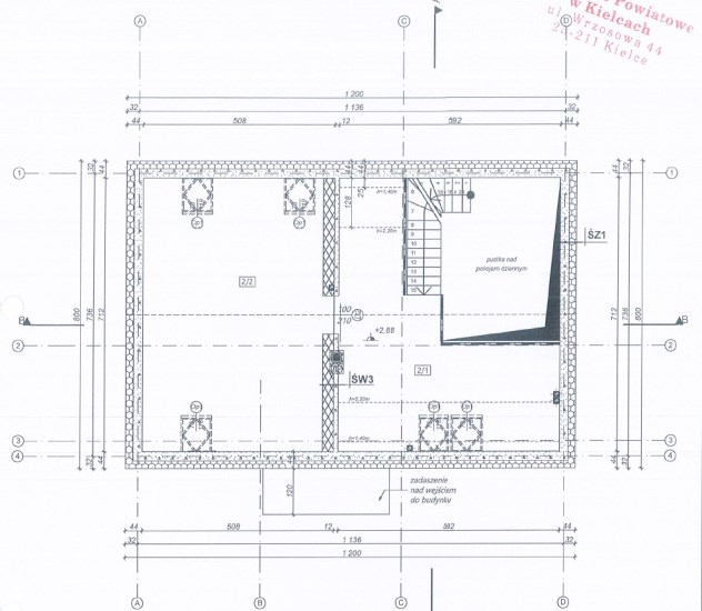
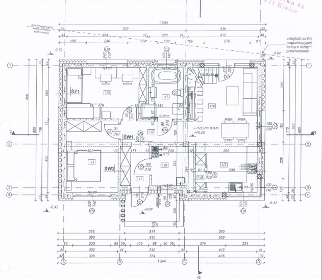
Dom parterowy z użytkowym poddaszem, niepodpiwniczony, zaprojektowany z myślą o funkcjonalności i komforcie codziennego życia. Nad salonem zaplanowano efektowną pustkę, która nadaje wnętrzu przestronności i nowoczesnego charakteru.

Rozkład pomieszczeń:

Parter:

  • salon z aneksem kuchennym,

  • dwie sypialnie,

  • łazienka,

  • pomieszczenie gospodarcze.

Poddasze użytkowe:

  • pokój,

  • łazienka,

  • antresola – idealna jako strefa relaksu lub miejsce do pracy.

Standard i technologia:

  • przewidziane ogrzewanie za pomocą pompy ciepła,

  • ogrzewanie podłogowe w całym domu,

  • dach pokryty blachodachówką,

  • budynek docieplony styropianem i otynkowany.

Działka i otoczenie:

Teren częściowo ogrodzony i zagospodarowany – na podjeździe ułożona kostka betonowa, wokół trawnik. Dom położony w drugiej linii zabudowy, co zapewnia ciszę, prywatność i komfort. W bezpośrednim sąsiedztwie las oraz zabudowa jednorodzinna, idealne warunki dla osób ceniących spokój i bliskość natury.

Media:

  • prąd,

  • woda,

  • kanalizacja,

  • gaz – brak.

To idealna propozycja dla osób poszukujących nowoczesnego domu w spokojnej lokalizacji, z jednoczesnym szybkim dostępem do infrastruktury i terenów zielonych.

Dla domu nie zostało sporządzone świadectwo charakterystyki energetycznej.
Działka jest w trakcie podziału.

Dane kontaktowe do agenta: Dorota Pękalska - Perz Tel: 608-827-080 E-mail:  dorota.pekalska-perz@properco.pl

For service in English call Magdalena Prokopoudi at +48 888-889-594.

___


 

For sale: a modern house in developer condition – Suków.

A comfortable single-family house in developer condition is offered for sale, with a total area of 132.39 m² (usable area 88.49 m²), located in the village of Suków, on a plot of 895 m².

A single-storey house with a usable attic, without a basement, designed with functionality and everyday comfort in mind. Above the living room, an impressive open void has been planned, giving the interior a sense of spaciousness and a modern character.

Layout:
Ground floor:

  • living room with kitchenette,

  • two bedrooms,

  • bathroom,

  • utility room.

Usable attic:

  • room,

  • bathroom,

  • mezzanine – ideal as a relaxation area or a workspace.

Standard and technology:

  • heating via a heat pump,

  • underfloor heating on the ground floor,

  • roof covered with metal roofing tiles,

  • building insulated with polystyrene and finished with plaster.

Plot and surroundings:
The plot is partially fenced and landscaped – concrete paving stones on the driveway, lawn around the house. The property is located in the second line of development, ensuring peace, privacy, and comfort. In the immediate vicinity there is a forest and single-family housing, creating ideal conditions for those who value tranquillity and proximity to nature.

Utilities:

  • electricity,

  • water,

  • sewage,

  • gas – not available.

This is an ideal offer for people looking for a modern house in a quiet location, while still enjoying quick access to infrastructure and green areas.

An energy performance certificate has not been prepared for the house.
The plot is in the process of subdivision.

For service in English call Magdalena Prokopoudi at +48 888-889-594.

Informacje ogólne

  • Nr oferty
    PRP-DS-75862
  • Rodzaj
  • Lokalizacja
    Daleszyce
  • Dzielnica
    Suków
  • Pow. całkowita [m2]
    132.39
  • Powierzchnia użytkowa [m2]
    88.49
  • Cena:
    595 000 PLN
  • Cena za m2
    4 494 PLN

Nieruchomości

Okna
PCV
Balkon
brak
Powierzchnia użytkowa [m2]
88.49
Rok budowy
2025
Zagospodarowanie działki
Zagospodarowana
Ukształtowanie działki
płaska
Kształt działki
inny
Ogrodzenie działki
częściowo ogrodzona
Pokrycie dachu
blachodachówka
Podpiwniczenie
Nie
Stan budynku
do wykończenia
Garaż
brak
Gaz
brak
Woda
pompa
Kanalizacja
tak
Prąd
jest
Dojazd
droga utwardzona
Ogrzewanie
pompa ciepła

Pomieszczenia

Pokoje
4
Wysokość pomieszczeń
0
Liczba łazienek
2
Liczba przedpokoi
2
Kuchnia
Typ pomieszczenia
aneks kuchenny - połączony z salonem
Lazienka
Liczba
2
Przedpokoj
Liczba
2
PROPERCO sp. z o.o. sp.k
Osoba
do kontaktu
Dorota Pękalska-Perz +48 608 827 080 dorota.pekalska-perz@properco.pl

Nr oferty: PRP-DS-75862

Dlaczego my?

Pomagamy w załatwianiu formalności
Pomagamy w załatwianiu formalności
Pomagamy w finansowaniu
Pomagamy w finansowaniu
Profesjonalne sesje zdjęciowe
Profesjonalne sesje zdjęciowe
Oferujemy home staging
Oferujemy home staging