Warszawa: 888 889 661
ul. Brylowska 2/3B
Kielce: 692 024 827
ul. Kozia 3a/1
pl

Morawica, Bilcza

120.63 m2 Pokoje: 4 7 046 PLN/m2 850 000 PLN

Opis oferty

Kupujący zwolniony z 2% podatku PCC!

Na sprzedaż dom 4 -pokojowy w zabudowie szeregowej (segment skrajny), w stanie deweloperskim, o powierzchni użytkowej 120,63 m2, zlokalizowany na nowo powstającym osiedlu domów jednorodzinnych w Bilczy, gm. Morawica.

W skład nieruchomości wchodzą:
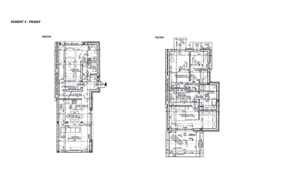
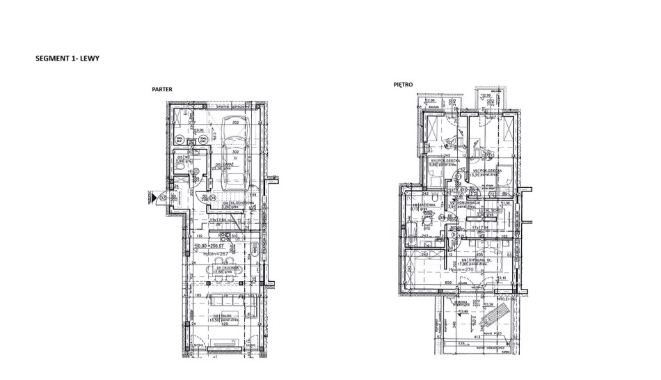
Parter:

- komunikacja o pow. 5,51 m2,
- klatka schodowa o pow. 3,26 m2,
- salon z aneksem kuchenny o pow. 29,16 m2,
- WC o pow. 2,96 m2,   
- Garaż o pow. 23,36 m2. 

Piętro:

- klatka schodowa o pow. 3,26 m2,
- komunikacja o pow. 3,99 m2,   
- sypialnia o pow. 9,89 m2,  
- sypialnia o pow. 13,31 m2,
- sypialnia o pow. 17,8 m2,
- łazienka o pow. 8,13 m2.

Dom znajduje się na działce o powierzchni ok. 300 m2 (zostanie wydzielona), w kształcie prostokąta, o przybliżonych wymiarach: 10 x 30 [m]. Szerokość frontu ok. 10 m. W otoczeniu nowo powstająca zabudowa jednorodzinna.

Dom stanie deweloperskim, wykończony przy użyciu najwyższej jakości materiałów i w nowoczesny sposób:
- materiał konstrukcyjny beton komórkowy H+H Solbet + ocieplenie styropianem o grubości 25 cm;
- przesuwne, energooszczędne okna 3 - szybowe Oknoplast,
- drzwi wejściowe zewnętrzne antywłamaniowe,
- instalacja elektryczna, TV, internetowa, alarmowa, monitoring,
- wykonano odwodnienie z każdego budynku do kanału deszczowego,
-
zainstalowano rolety zewnętrzne automatyczne,
- ogrzewanie podłogowe
w całym budynku,
- zainstalowano także instalację do ogrzewania rynien.

Teren przy budynku w pełni zagospodarowany, kostka na tarasie, wokół domu opaska, przed bramą kostka brukowa, przed wjazdem na osiedle zostanie zamontowana brama automatyczna. Dach płaski z pełną izolacją termiczną. 

Ogrzewanie gazowe (piec dwufunkcyjny). Możliwość zamontowania pompy ciepła na życzenie klienta (za dodatkową opłatą).

Media:
- w budynku woda z sieci gminnej, kanalizacja gminna, energia elektryczna, gaz.
Dostępny jest także szereg o pow. 137,32 m2 w cenie 960 000 PLN. 

Bardzo dobra lokalizacja tuż obok granicy z miastem Kielce, szybki i łatwy dojazd do centrum miasta. Cicha, spokojna okolica. Dojazd drogą utwardzoną, w pobliżu nowo powstająca zabudowa jednorodzinna.

Dane kontaktowe do agenta: Jacek Kotlarz, tel: 888 889 441, e-mail: jacek.kotlarz@properco.pl
For more information in English please call: 888 889 441, e-mail: jacek.kotlarz@properco.pl

--------

Buyer exempt from 2% PCC tax!

For sale: 4-room terraced house (end unit) in developer standard, with a usable area of 120.63 m², located in a newly developing single-family housing estate in Bilcza, Morawica commune.

The property consists of:

Ground floor:

  • hall – 5.51 m²,

  • staircase – 3.26 m²,

  • living room with kitchenette – 29.16 m²,

  • WC – 2.96 m²,

  • garage – 23.36 m².

First floor:

  • staircase – 3.26 m²,

  • hall – 3.99 m²,

  • bedroom – 9.89 m²,

  • bedroom – 13.31 m²,

  • bedroom – 17.80 m²,

  • bathroom – 8.13 m².

The house sits on a plot of approx. 300 m² (to be separated), rectangular in shape, with approximate dimensions: 10 x 30 m, frontage width approx. 10 m. Surrounded by newly built single-family houses.

Developer standard finish, using high-quality materials and modern solutions:

  • construction material: H+H Solbet aerated concrete + 25 cm polystyrene insulation,

  • sliding triple-glazed energy-efficient Oknoplast windows,

  • anti-burglary entrance door,

  • electrical, TV, internet, alarm, and monitoring installations,

  • drainage system from each building to the stormwater channel,

  • automatic external roller shutters,

  • underfloor heating throughout the building,

  • gutter heating installation.

The area around the building is fully developed: paved terrace, perimeter paving, driveway in paving stones, and automatic entrance gate to be installed at the estate entrance. Flat roof with full thermal insulation.

Gas heating. Option to install a heat pump upon request (at extra cost).

Utilities:

  • water from the municipal network,

  • municipal sewage system,

  • electricity,

  • gas.

Another terraced unit with an area of 137.32 m² is available for 960,000 PLN.

Excellent location right next to the Kielce city border, with quick and easy access to the city center. Quiet, peaceful neighborhood. Access via a paved road, in the vicinity of newly built single-family houses.

Contact details for the agent: Jacek Kotlarz, tel: 888 889 441, e-mail: jacek.kotlarz@properco.pl

Informacje ogólne

  • Nr oferty
    PRP-DS-75843
  • Rodzaj
  • Lokalizacja
    Morawica
  • Dzielnica
    Bilcza
  • Pow. całkowita [m2]
    120.63
  • Liczba pięter w budynku
    1
  • Cena:
    850 000 PLN
  • Cena za m2
    7 046 PLN

Nieruchomości

Liczba pięter w budynku
1
Okna
PCV 3 komorowe
Balkon
jest
Liczba balkonów
2
Powierzchnia użytkowa [m2]
120.63
Rok budowy
2025
Zagospodarowanie działki
Zagospodarowana
Ukształtowanie działki
płaska
Kształt działki
prostokąt
Ogrodzenie działki
ogrodzona
Instalacje
Taknowe
Pokrycie dachu
papa termozgrzewalna
Pozwolenie na użytkowanie
WTrakcieUzyskiwania
Podpiwniczenie
Nie
Stan budynku
do wykończenia
Garaż
w bryle
Gaz
jest
Woda
tak - miejska
Kanalizacja
tak
Prąd
jest
Dojazd
ASFALTOWA
Ogrzewanie
piec dwufunkcyjny
Drzwi antywłamaniowe
Tak
Rolety antywłamaniowe
Tak

Pomieszczenia

Pokoje
4
Wysokość pomieszczeń
0
Liczba łazienek
1
Liczba WC
1
Liczba przedpokoi
1
Kuchnia
Typ pomieszczenia
aneks kuchenny - połączony z salonem
Rodzaj kuchni
aneks kuchenny
Lazienka
Typ pomieszczenia
osobno z wc
Liczba
1
Wc
Liczba
1
Przedpokoj
Liczba
1
PROPERCO sp. z o.o. sp.k
Osoba
do kontaktu
Jacek Kotlarz +48 888 889 441 jacek.kotlarz@properco.pl

Nr oferty: PRP-DS-75843

Dlaczego my?

Pomagamy w załatwianiu formalności
Pomagamy w załatwianiu formalności
Pomagamy w finansowaniu
Pomagamy w finansowaniu
Profesjonalne sesje zdjęciowe
Profesjonalne sesje zdjęciowe
Oferujemy home staging
Oferujemy home staging