Warszawa: 888 889 661
ul. Brylowska 2/3B
Kielce: 692 024 827
ul. Kozia 3a/1
pl

Kielce, Centrum, Henryka Sienkiewicza

115.00 m2 36 PLN/m2 4 182 PLN

Opis oferty

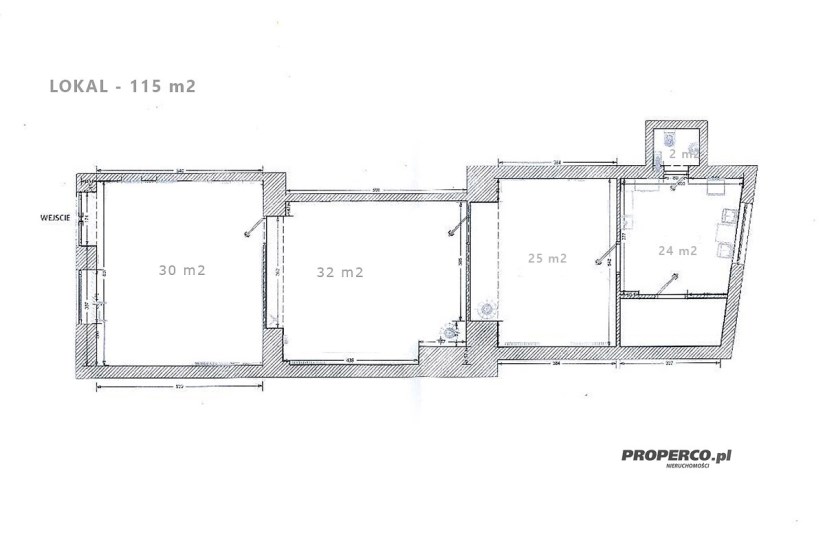
Do wynajęcia lokal pow. 115 m2 zlokalizowany na parterze kamienicy przy ul. Sienkiewicza, w ścisłym centrum Kielc. Lokal może być przeznaczony na dowolną działalność – handlowo – usługowo – biurową. Lokal składa się z 4 pomieszczeń w amfiladzie: 30 m2, 32 m2, 25 m2, 24 m2. Wysokość pomieszczeń 3,0 m. Lokal klimatyzowany. Ogrzewanie i ciepła woda - piec gazowy dwufunkcyjny. 

Koszty utrzymania: czynsz najmu 3400 PLN netto / 4182 PLN brutto plus media (prąd, woda, gaz)

Dla nieruchomości nie sporządzono świadectwa charakterystyki energetycznej.

Stan lokalu oraz wyposażenie różni się od tego przedstawionego na zdjęciach. 

Dane kontaktowe do agenta: Krzysztof Jakubowski  Tel: 888 889 568 E-mail: krzysztof.jakubowski@properco.pl
For service in English please call Jacek Kotlarz at: +48 888 889 441.

-------

 

For rent: a 115 m² premises located on the ground floor of a tenement house on Sienkiewicza Street, in the very center of Kielce. The premises can be used for any type of activity - commercial, service, or office. The premises consist of 4 enfilade rooms: 30 m², 32 m², 25 m², 24 m². Room height is 3.0 m. The premises are air-conditioned. Heating and hot water are provided by a dual-function gas boiler.

Maintenance costs: rent of 3400 PLN net / 4182 PLN gross plus utilities (electricity, water, gas).

An energy performance certificate has not been prepared for the property.

The condition of the premises and the equipment differs from what is shown in the photos.

For service in English, please call Jacek Kotlarz at: +48 888 889 441

Informacje ogólne

  • Nr oferty
    PRP-LW-75841
  • Rodzaj
  • Lokalizacja
    Kielce, Henryka Sienkiewicza
  • Dzielnica
    Centrum
  • Rodzaj budynku
    kamienica
  • Pow. całkowita [m2]
    115.00
  • Piętro
    parter
  • Liczba pięter w budynku
    2
  • Cena:
    4 182 PLN
  • Cena za m2
    36 PLN

Nieruchomości

Liczba pięter w budynku
2
Okna
PCV
Powierzchnia użytkowa [m2]
115.00
Winda
nie
Stan lokalu
bardzo dobry
Przeznaczenie lokalu
inny, handlowy, handlowo-usługowy, gastronomia, biurowy
Instalacje
Takdobre
Dojazd
asfalt
Ogrzewanie
centralne
Usytuowanie
jednostronne

Pomieszczenia

Wysokość pomieszczeń
3
PROPERCO sp. z o.o. sp.k
Osoba
do kontaktu
Krzysztof Jakubowski +48 888 889 568 krzysztof.jakubowski@properco.pl

Nr oferty: PRP-LW-75841

Dlaczego my?

Pomagamy w załatwianiu formalności
Pomagamy w załatwianiu formalności
Pomagamy w finansowaniu
Pomagamy w finansowaniu
Profesjonalne sesje zdjęciowe
Profesjonalne sesje zdjęciowe
Oferujemy home staging
Oferujemy home staging