Warszawa: 888 889 661
ul. Brylowska 2/3B
Kielce: 692 024 827
ul. Kozia 3a/1
pl

Kielce, Baranówek, Kwarciana

64.23 m2 Pokoje: 3 39 PLN/m2 2 500 PLN

Opis oferty

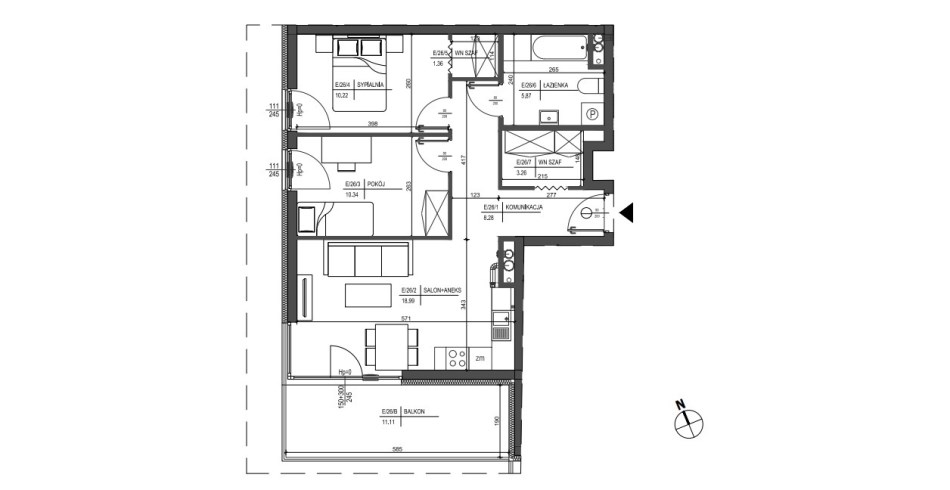
Do wynajęcia 3-pokojowe mieszkanie o powierzchni 64,23 m2, zlokalizowane na trzecim piętrze w apartamentowcu z 2016 roku, przy ul. Kwarcianej.

W skład mieszkania wchodzą:

- przestronny salon o pow. 15,95 m2,
- aneks kuchenny o pow. 10,78 m2,
- sypialnia  o pow. 9,89 m2, 
- sypialnia o pow. 12,85 m2
- łazienka wraz z WC o pow. 4,16 m2,
- pow. techniczne/ pralnia/ schowek o pow. 1,28 m2, 
- przedpokój o pow. 9,32 m2.

Mieszkanie dwustronne, z ekspozycją północ - południe. 
Z salonu wyjście na duży balkon o powierzchni 7 m2.

Mieszkanie zlokalizowane w nowoczesnym budynku, z widokiem na tereny zielone (góra Telegraf). Jednocześnie bardzo dobrze skomunikowane z pozostałą częścią miasta. W pobliżu przystanki autobusowe, sklepy, urzędy, park, szkoła.

Mieszkanie wykończone w wysokim standardzie, w pełni umeblowane i wyposażone w niezbędne sprzęty AGD m.in. suszarka, zmywarka, mikrofalówka w zabudowie, piekarnik, płyta indukcyjna, lodówka w zabudowie, ekspres do kawy, telewizor, odkurzacz, żelazko, deska do prasowania). W mieszkaniu w salonie zamontowana klimatyzacja. W każdym oknie w mieszkaniu zamontowane moskitiery. 

Teren nieruchomości ogrodzony. Do mieszkania przynależy miejsce postojowe w garażu podziemnym, płatne dodatkowo 200 PLN. 

Koszty utrzymaniaczynsz najmu 2500 PLN + czynsz administracyjny ok. 750 PLN / 5 os. (zawiera zaliczki na wodę i ogrzewanie, utrzymanie części wspólnych) + prąd według wskazań licznika.
Kaucja: jednomiesięczne.

Wymagany najem okazjonalny!

 
Dla mieszkania nie sporządzono świadectwa charakterystyki energetycznej.

Dane kontaktowe do agenta: Jacek Kotlarz, tel: 888 889 441, e-mail: jacek.kotlarz@properco.pl
For more information in English please call: 888 889 441, e-mail: jacek.kotlarz@properco.pl

____

 

For rent: a 3-room apartment with a total area of 64.23 m², located on the third floor of an apartment building from 2016, on Kwarciana Street.

The apartment consists of:

  • a spacious living room with an area of 15.95 m²,

  • a kitchenette with an area of 10.78 m²,

  • a bedroom with an area of 9.89 m²,

  • a bedroom with an area of 12.85 m²,

  • a bathroom with WC with an area of 4.16 m²,

  • a technical room / laundry room / storage room with an area of 1.28 m²,

  • a hallway with an area of 9.32 m².

The apartment is dual-aspect, with north–south exposure.
From the living room there is access to a large balcony with an area of 7 m².

The apartment is located in a modern building with a view of green areas (Telegraf Hill), while at the same time being very well connected with the rest of the city. Nearby there are bus stops, shops, offices, a park, and a school.

The apartment is finished to a high standard, fully furnished and equipped with necessary household appliances, including a dryer, dishwasher, built-in microwave, oven, induction hob, built-in fridge, coffee machine, TV, vacuum cleaner, iron, and ironing board. The living room is equipped with air conditioning. Mosquito nets are installed in all windows.

The property is fenced. The apartment includes a parking space in the underground garage, available for an additional fee of 200 PLN.

Maintenance costs: rent 2,500 PLN + administrative fee approx. 750 PLN / 5 persons (includes advances for water and heating, maintenance of common areas) + electricity according to meter readings.
Security deposit: one month’s rent.

Occasional lease required.

No energy performance certificate has been prepared for the apartment

For more information in English please call: 888 889 441, e-mail: jacek.kotlarz@properco.pl

Informacje ogólne

  • Nr oferty
    PRP-MW-75807
  • Rodzaj
  • Lokalizacja
    Kielce, Kwarciana
  • Dzielnica
    Baranówek
  • Rodzaj budynku
    apartamentowiec
  • Pow. całkowita [m2]
    64.23
  • Piętro
    3p
  • Liczba pięter w budynku
    4
  • Cena:
    2 500 PLN
  • Cena za m2
    39 PLN

Nieruchomości

Liczba pięter w budynku
4
Rodzaj mieszkania
Jednopoziomowe
Okna
PCV
Balkon
duży
Liczba balkonów
1
Powierzchnia użytkowa [m2]
64.23
Rok budowy
2016
Winda
tak
Technologia budowlana
beton, cegła
Stan lokalu
wysoki standard
Instalacje
Takdobre
Gaz
brak
Woda
ciepła - miejska
Dojazd
asfalt
Ogrzewanie
C.O. Z SIECI MIEJSKIEJ
Drzwi antywłamaniowe
Tak
Tv kablowa
Tak
Usytuowanie
dwustronne
Umeblowanie
pełne

Pomieszczenia

Pokoje
3
Wysokość pomieszczeń
0
Liczba łazienek
1
Liczba przedpokoi
1
Pokoj
Powierzchnia
15,95;12,85;9,89
Ściany
malowane
Podłogi
panele podłogowe
Wystawa okien
Pn, Pd
Kuchnia
Powierzchnia
10,78
Typ pomieszczenia
aneks kuchenny - połączony z salonem
Rodzaj kuchni
aneks kuchenny połączony z jadalnią i salonem
Ściany
glazura
Podłogi
gres
Wystawa okien
Pn
Wyposażenie
zmywarka, zabudowa kuchenna, wyposażenie drobne, sztućce, szafki wiszące, szafki stojące, szafki kuchenne, stół, stała zabudowa, sprzęt AGD, płyta indukcyjna, piekarnik elektryczny, okap, mikrofalówka, meble kuchenne na wymiar, lodówko-zamrażarka,, krzesła, garnki
Lazienka
Powierzchnia
4,16
Typ pomieszczenia
razem z wc
Liczba
1
Glazura
nowego typu
Ściany
malowane, glazura
Podłogi
gres
Wyposażenie
zlew, Wanna, szafki, szafka, suszarka, pralka, lustro
Przedpokoj
Powierzchnia
9,32
Liczba
1
Ściany
malowane
Podłogi
gres
PROPERCO sp. z o.o. sp.k
Osoba
do kontaktu
Jacek Kotlarz +48 888 889 441 jacek.kotlarz@properco.pl

Nr oferty: PRP-MW-75807

Dlaczego my?

Pomagamy w załatwianiu formalności
Pomagamy w załatwianiu formalności
Pomagamy w finansowaniu
Pomagamy w finansowaniu
Profesjonalne sesje zdjęciowe
Profesjonalne sesje zdjęciowe
Oferujemy home staging
Oferujemy home staging