Warszawa: 888 889 661
ul. Brylowska 2/3B
Kielce: 692 024 827
ul. Kozia 3a/1
pl

Jędrzejów,

34.65 m2 Pokoje: 2 9 990 PLN/m2 346 154 PLN

Opis oferty

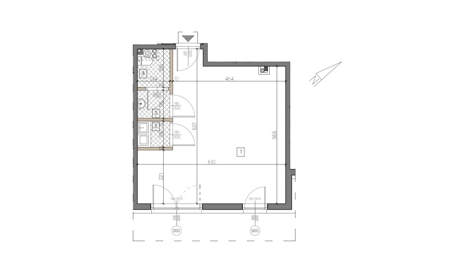
Na sprzedaż lokal o powierzchni 34,65 m2, zlokalizowany na parterze nowoczesnej inwestycji w Jędrzejowie. Lokal w stanie deweloperskim.

Nieruchomość składa się z:
– pomieszczenia głównego o pow. 29,84m2,
– łazienki o pow. 1,48m2,
- wc o pow. 1,98m2,
– pomieszczenia socjalnego o pow. 1,35 m2.

Termin realizacji inwestycji: III kwartał 2026 r.

Ogrzewanie z własnej kotłowni gazowej dla budynku.

Istnieje możliwość zakupu:
– miejsca w hali garażowej – 48 000 zł (23%VAT) (winda z poziomu garażu),
– miejsca postojowego zewnętrznego - 20 000 brutto (8%VAT)

Inwestycja
Kompleks obejmuje 57 mieszkań w budynku apartamentowym z garażem w bryle. Na terenie dostępne są udogodnienia takie jak: siłownia, sauna, pokój zabaw dla dzieci, pokój majsterkowicza, stacja uzdatniania wody, stacja ładowania pojazdów elektrycznych, miejsca dla gości oraz restauracja.

Lokalizacja
Osiedle położone jest w pobliżu Parku Miejskiego i zalewem – w otoczeniu terenów rekreacyjnych i zieleni, z wygodnym dostępem do infrastruktury miejskiej: szkół, usług, komunikacji (dworce PKP/PKS, przystanki autobusowe), sklepów i obiektów sportowych.

>> Kupujący zwolniony z kosztów obsługi biura i podatku PCC <<
 

Dane kontaktowe do agenta: Magdalena Prokopoudi Tel: 888-889-594 E-mail: magdalena.prokopoudi@properco.pl
For service in English call Magdalena Prokopoudi at +48 888-889-594

--------

 

For sale: a unit with an area of 34.65 m2, located on the ground floor in a modern development in Jędrzejów. The unit is in developer standard.

The property consists of:
– main room with an area of 29.84m2,
– bathroom with an area of 1.48m2,
– WC with an area of 1.98m2,
– social/utility room with an area of 1.35m2.

Project completion date: Q3 2026.

Heating from the building’s own gas boiler room.

There is a possibility to purchase:
– a parking space in the underground garage – PLN 48,000 (23% VAT) (elevator access from garage level),
– an outdoor parking space – PLN 20,000 gross (8% VAT)

Development
The complex includes 57 apartments in an apartment building with an integrated underground garage. The premises offer amenities such as: a gym, sauna, children’s playroom, DIY room, water treatment station, electric vehicle charging station, guest parking spaces and a restaurant.

Location
The estate is located near the City Park and the reservoir – surrounded by recreational areas and greenery, with convenient access to urban infrastructure: schools, services, transport (PKP/PKS stations, bus stops), shops and sports facilities.

>>The buyer is exempt from office service fees and PCC tax <<

Contact details for the agent: Magdalena Prokopoudi Tel: 888-889-594 E-mail: magdalena.prokopoudi@properco.pl

Informacje ogólne

  • Nr oferty
    PRP-LS-75786
  • Rodzaj
  • Lokalizacja
    Jędrzejów
  • Rodzaj budynku
    apartamentowiec
  • Pow. całkowita [m2]
    34.65
  • Piętro
    parter
  • Liczba pięter w budynku
    4
  • Cena:
    346 154 PLN
  • Cena za m2
    9 990 PLN

Nieruchomości

Liczba pięter w budynku
4
Okna
PCV
Balkon
duży
Powierzchnia użytkowa [m2]
34.65
Rok budowy
2026
Winda
tak
Stan lokalu
deweloperski
Przeznaczenie lokalu
biurowy, handlowo-usługowy, handlowy, usługowy
Instalacje
Taknowe
Gaz
jest
Woda
tak - miejska
Dojazd
asfalt
Ogrzewanie
C.O. GAZOWE
Usytuowanie
jednostronne

Pomieszczenia

Pokoje
2
Wysokość pomieszczeń
0
PROPERCO sp. z o.o. sp.k
Osoba
do kontaktu
Magdalena Prokopoudi +48 888 889 594 magdalena.prokopoudi@properco.pl

Nr oferty: PRP-LS-75786

Dlaczego my?

Pomagamy w załatwianiu formalności
Pomagamy w załatwianiu formalności
Pomagamy w finansowaniu
Pomagamy w finansowaniu
Profesjonalne sesje zdjęciowe
Profesjonalne sesje zdjęciowe
Oferujemy home staging
Oferujemy home staging