Warszawa: 888 889 661
ul. Brylowska 2/3B
Kielce: 692 024 827
ul. Kozia 3a/1
pl

Jędrzejów,

44.03 m2 Pokoje: 2 9 999 PLN/m2 440 255 PLN

Opis oferty

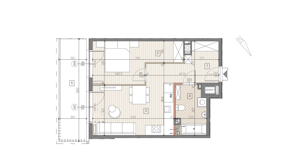
Na sprzedaż 2-pokojowe mieszkanie o powierzchni 44,03 m2, zlokalizowane na 2 piętrze w nowoczesnej inwestycji w Jędrzejowie. Lokal w stanie deweloperskim.

Mieszkanie składa się z:
– salonu z aneksem kuchennym o pow. 19,24m2,
– sypialni o pow. 12,76m2,
– łazienki o pow. 5,70m2,
- holu o pow. 6,33m2,
– balkonu o pow. 10,99 m2.

Termin realizacji inwestycji: III kwartał 2026 r.

Układ mieszkania jest funkcjonalny, a jednopoziomowy rozkład oraz dostęp do windy zwiększają komfort użytkowania. Ogrzewanie z własnej kotłowni gazowej dla budynku.

Istnieje możliwość zakupu:
– miejsca w hali garażowej – 48 000 zł (winda z poziomu garażu),
– komórki lokatorskiej – 4000 zł/m2.

Inwestycja
Kompleks obejmuje 57 mieszkań w budynku apartamentowym z garażem w bryle. Na terenie dostępne są udogodnienia takie jak: siłownia, sauna, pokój zabaw dla dzieci, pokój majsterkowicza, stacja uzdatniania wody, stacja ładowania pojazdów elektrycznych, miejsca dla gości oraz restauracja.

Lokalizacja
Osiedle położone jest w pobliżu Parku Miejskiego i zalewem – w otoczeniu terenów rekreacyjnych i zieleni, z wygodnym dostępem do infrastruktury miejskiej: szkół, usług, komunikacji (dworce PKP/PKS, przystanki autobusowe), sklepów i obiektów sportowych.

>> Kupujący zwolniony z kosztów obsługi biura i podatku PCC <<
 

Dane kontaktowe do agenta: Magdalena Prokopoudi Tel: 888-889-594 E-mail: magdalena.prokopoudi@properco.pl
For service in English call Magdalena Prokopoudi at +48 888-889-594

--------

 

For sale: a 2-room apartment with an area of 44.03 m2, located on the 2nd floor in a modern development in Jędrzejów. The apartment is in developer standard.

The apartment consists of:
– living room with kitchenette with an area of 19.24m2,
– bedroom with an area of 12.76m2,
– bathroom with an area of 5.70m2,
– hall with an area of 6.33m2,
– balcony with an area of 10.99m2.

Project completion date: Q3 2026.

The layout is functional, and the single-level arrangement together with elevator access increases user comfort. Heating from the building’s own gas boiler room.

There is a possibility to purchase:
– a parking space in the underground garage – PLN 48,000 (elevator access from garage level),
– a storage unit – PLN 4,000/m2.

Development
The complex includes 57 apartments in an apartment building with an integrated underground garage. The premises offer amenities such as: a gym, sauna, children’s playroom, DIY room, water treatment station, electric vehicle charging station, guest parking spaces and a restaurant.

Location
The estate is located near the City Park and the reservoir – surrounded by recreational areas and greenery, with convenient access to urban infrastructure: schools, services, transport (PKP/PKS stations, bus stops), shops and sports facilities.

>>The buyer is exempt from office service fees and PCC tax <<

Contact details for the agent: Magdalena Prokopoudi Tel: 888-889-594 E-mail: magdalena.prokopoudi@properco.pl

Informacje ogólne

  • Nr oferty
    PRP-MS-75733
  • Rodzaj
  • Lokalizacja
    Jędrzejów
  • Rodzaj budynku
    apartamentowiec
  • Pow. całkowita [m2]
    44.03
  • Piętro
    2p
  • Liczba pięter w budynku
    4
  • Cena:
    440 255 PLN
  • Cena za m2
    9 999 PLN

Nieruchomości

Liczba pięter w budynku
4
Rodzaj mieszkania
Jednopoziomowe
Okna
PCV
Balkon
duży
Liczba balkonów
1
Powierzchnia użytkowa [m2]
44.03
Rok budowy
2026
Winda
tak
Stan lokalu
deweloperski
Instalacje
Taknowe
Gaz
jest
Woda
tak - miejska
Dojazd
asfalt
Ogrzewanie
C.O. GAZOWE
Usytuowanie
jednostronne

Pomieszczenia

Pokoje
2
Wysokość pomieszczeń
0
Liczba łazienek
1
Kuchnia
Rodzaj kuchni
aneks kuchenny
Lazienka
Liczba
1
PROPERCO sp. z o.o. sp.k
Osoba
do kontaktu
Magdalena Prokopoudi +48 888 889 594 magdalena.prokopoudi@properco.pl

Nr oferty: PRP-MS-75733

Dlaczego my?

Pomagamy w załatwianiu formalności
Pomagamy w załatwianiu formalności
Pomagamy w finansowaniu
Pomagamy w finansowaniu
Profesjonalne sesje zdjęciowe
Profesjonalne sesje zdjęciowe
Oferujemy home staging
Oferujemy home staging