Warszawa: 888 889 661
ul. Brylowska 2/3B
Kielce: 692 024 827
ul. Kozia 3a/1
pl

Kielce, Baranówek, Artylerzystów

37.66 m2 Pokoje: 2 13 808 PLN/m2 520 000 PLN

Opis oferty

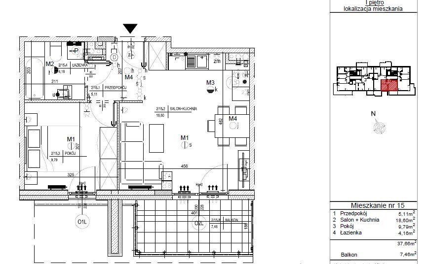
Na sprzedaż 2-pokojowe mieszkanie, o pow. 37,66 m2, zlokalizowane na 1 piętrze w 4-piętrowym budynku z windą, w nowoczesnej inwestycji Park Sosnowy II z 2025 roku, przy ul. Artylerzystów, na Stadionie Leśnym. 

W skład mieszkania wchodzą:
- salon z aneksem kuchennym o pow. 18,6 m2, z wyjściem na balkon o pow. 7,46 m2
- sypialnia o pow. 9,79 m2
- łazienka wraz z WC o pow. 4,16 m2
- komunikacja o pow. 5,11 m2

Posesja nieruchomości ogrodzona oraz wyposażona w monitoring. 
Do mieszkania przynależy komórka lokatorska w cenie 12 000 PLN.

Inwestycja dla osób ceniących sobie bliski kontakt z naturą, otoczona lasem sosnowym, stanowiącym naturalną izolację od zgiełku miasta i zanieczyszczeń. Lokalizacja sprzyja zachowaniu aktywności fizycznej: wokół liczne ścieżki leśne oraz szlaki rowerowe. W bliskim sąsiedztwie wyciąg narciarski, Baseny Tropikalne, stadion lekkoatletyczny. 

Mieszkanie jednostronne, z ekspozycją południowo-zachodnią. Sprzedawane w stanie deweloperskim. Możliwość zakupu komórki lokatorskiej.

Ogrzewanie i ciepła woda z własnej kotłowni dla budynku.

Dane kontaktowe do agenta: Wojciech Rusin, tel: 692-016-094

____

 

For Sale: 2-Room Apartment, 37.66 m²

Located on the 1st floor of a modern 4-story building with an elevator, part of the Park Sosnowy development from 2025. Address: Artylerzystów Street, near the Stadion Leśny area.

Apartment Layout:

  • Living Room with Kitchenette: 18.6 m², with access to a balcony (7.46 m²)
  • Bedroom: 9.79 m²
  • Bathroom with WC: 4.16 m²
  • Hallway: 5.11 m²

The property is enclosed and equipped with monitoring for added security.
The apartment includes a storage unit for PLN 12,000.

Surroundings:
Ideal for nature lovers, the development is surrounded by a pine forest, offering natural insulation from city noise and pollution. The location encourages physical activity with numerous forest trails and bike paths nearby. In close proximity are a ski lift, Tropical Pools, and an athletics stadium.

Features:

  • South-western exposure (single-sided layout)
  • Sold in developer's condition
  • Heating and hot water provided by the building’s private boiler room

Contact Details:
Agent: Wojciech Rusin
Phone: +48 692-016-094

Informacje ogólne

  • Nr oferty
    PRP-MS-75688
  • Rodzaj
  • Lokalizacja
    Kielce, Artylerzystów
  • Dzielnica
    Baranówek
  • Rodzaj budynku
    apartamentowiec
  • Pow. całkowita [m2]
    37.66
  • Piętro
    1p
  • Liczba pięter w budynku
    4
  • Cena:
    520 000 PLN
  • Cena za m2
    13 808 PLN

Nieruchomości

Liczba pięter w budynku
4
Rodzaj mieszkania
Jednopoziomowe
Okna
PCV
Balkon
jest
Liczba balkonów
1
Powierzchnia użytkowa [m2]
37.66
Rok budowy
2025
Winda
tak
Stan lokalu
deweloperski
Instalacje
TakELEKTRYCZNA
Woda
ciepła - miejska
Ogrzewanie
centralne
Usytuowanie
jednostronne

Pomieszczenia

Pokoje
2
Wysokość pomieszczeń
0
Liczba przedpokoi
1
Pokoj
Wystawa okien
PdZach
Kuchnia
Typ pomieszczenia
aneks kuchenny - połączony z salonem
Lazienka
Powierzchnia
4,16
Typ pomieszczenia
razem z wc
Przedpokoj
Powierzchnia
5,11
Liczba
1
PROPERCO sp. z o.o. sp.k
Osoba
do kontaktu
Wojciech Rusin +48 692 016 094 wr@properco.pl

Nr oferty: PRP-MS-75688

Dlaczego my?

Pomagamy w załatwianiu formalności
Pomagamy w załatwianiu formalności
Pomagamy w finansowaniu
Pomagamy w finansowaniu
Profesjonalne sesje zdjęciowe
Profesjonalne sesje zdjęciowe
Oferujemy home staging
Oferujemy home staging