Warszawa: 888 889 661
ul. Brylowska 2/3B
Kielce: 692 024 827
ul. Kozia 3a/1
pl

Kielce, Na Stoku

46.92 m2 Pokoje: 2 9 500 PLN/m2 445 740 PLN

Opis oferty

Na sprzedaż 2 - pokojowe mieszkanie o pow. 46,92 m2 dostępne na II piętrze budynku zlokalizowanego w nowoczesnej inwestycji, położonej w bezpośrednim sąsiedztwie os. Na Stoku. Mieszkanie jest w stanie deweloperskim. 

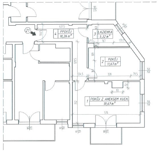
W skład mieszkania wchodzą:
a) salon z aneksem kuchennym (pow. 19,67 m2),
b) pokój (pow. 11,67m2),
c) przedpokój (pow. 10,26m2),
d) łazienka (pow. 5,32m2).
 
Ogrzewanie i ciepła woda z własnej kotłowni gazowej.

Inwestycja oddana do użytkowania.

Możliwość zakupu miejsca postojowego w garażu podziemnym w cenie 42 000 PLN, miejsce postojowe zewnętrzne w cenie 18 000 PLN. 


Inwestycja będzie się składać z 5 budynków mieszkalnych, wielorodzinnych. Bloki będą miały 5 kondygnacji naziemnych oraz garaże podziemne. Zostało zaplanowanych również 200 miejsc postojowych zewnętrznych. Część mieszkań zostanie wykończona pod klucz. W osiedlu zaplanowany jest plac zabaw i dużo zieleni. Teren wokół budynków zostanie ogrodzony. Widok rozciąga się na panoramę Kielc i Gór Świętokrzyskich.
 
>>Kupujący zwolniony z kosztów obsługi biura i podatku PCC<<

Dane kontaktowe do agenta: Agata Grela Tel: 692-929-191 E-mail: ag@properco.pl
For service in English call Agata Grela at +48 692-929-191, e-mail: ag@properco.pl

Informacje ogólne

  • Nr oferty
    PRP-MS-75638
  • Rodzaj
  • Lokalizacja
    Kielce
  • Dzielnica
    Na Stoku
  • Rodzaj budynku
    budynek wielorodzinny
  • Pow. całkowita [m2]
    46.92
  • Piętro
    2p
  • Liczba pięter w budynku
    4
  • Cena:
    445 740 PLN
  • Cena za m2
    9 500 PLN

Nieruchomości

Liczba pięter w budynku
4
Rodzaj mieszkania
Jednopoziomowe
Okna
PCV
Powierzchnia użytkowa [m2]
46.92
Rok budowy
2025
Winda
tak
Stan lokalu
deweloperski
Instalacje
Taknowe
Gaz
jest
Woda
jest
Dojazd
ASFALTOWA
Ogrzewanie
C.O. GAZOWE

Pomieszczenia

Pokoje
2
Wysokość pomieszczeń
0
Liczba przedpokoi
1
Kuchnia
Typ pomieszczenia
aneks kuchenny - połączony z salonem
Lazienka
Typ pomieszczenia
razem z wc
Przedpokoj
Liczba
1
PROPERCO sp. z o.o. sp.k
Osoba
do kontaktu
Agata Grela 692 929 191 ag@properco.pl

Nr oferty: PRP-MS-75638

Dlaczego my?

Pomagamy w załatwianiu formalności
Pomagamy w załatwianiu formalności
Pomagamy w finansowaniu
Pomagamy w finansowaniu
Profesjonalne sesje zdjęciowe
Profesjonalne sesje zdjęciowe
Oferujemy home staging
Oferujemy home staging