Warszawa: 888 889 661
ul. Brylowska 2/3B
Kielce: 692 024 827
ul. Kozia 3a/1
pl

Daleszyce,

64.30 m2 26 PLN/m2 1 700 PLN

Opis oferty

Do wynajęcia lokal o powierzchni ok. 64,3 m2, zlokalizowany na pierwszym piętrze w budynku handlowo-usługowym w centrum Daleszyc. Wejście do lokalu przez wspólną klatkę schodową. Budynek posiada dwa wejścia: od frontu i od podwórka. 

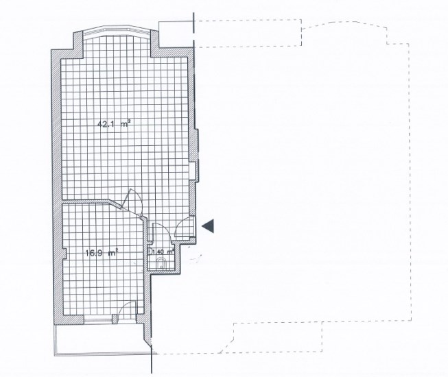
Lokal składa się z: 
- pomieszczenia o powierzchni 42,1 m2 z dużymi witrynami
- pomieszczenia o powierzchni 16,9 m2, z wyjściem na balkon
- toalety o powierzchni 1,4 m2.

Budynek ogrodzony, zabezpieczony monitoringiem i alarmem. Do dyspozycji najemcy parking znajdujący się na posesji. Istnieje możliwość montażu własnej reklamy oraz wyposażenia i dostosowania lokalu do potrzeb najemcy. 

Wysokość pomieszczeń ok. 2,6 m.

Lokal idealnie nadaje się pod działalność biurową/usługową/handlową.
Możliwość wynajęcia innych lokali o powierzchniach od ok. 22-54 m2, zlokalizowanych na różnych kondygnacjach w tym samym budynku.

Koszt najmu: 1382,11 PLN netto (1700 PLN brutto)media - woda, prąd, ogrzewanie (woda i ogrzewanie stosownie do zajmowanej powierzchni w przeliczeniu na m2; prąd według zużycia - odrębny podlicznik). 
Kaucja dwumiesięczna. 

Dla lokalu nie sporządzono świadectwa charakterystyki energetycznej. 

Dane kontaktowe do agenta: Agata Grela, tel: 692-929-191, E-mail: ag@properco.pl
For service in English call Agata Grela, tel: 692-929-191, E-mail: ag@properco.pl 

--------

For rent: a premises with an area of approx. 64.3 m², located on the first floor of a commercial and service building in the center of Daleszyce. Entrance to the unit through a shared staircase. The building has two entrances: from the front and from the yard.

The premises consist of:

  • a room with an area of 42.1 m² with large display windows

  • a room with an area of 16.9 m², with access to a balcony

  • a toilet with an area of 1.4 m²

The building is fenced, equipped with monitoring and an alarm system. A parking lot located on the property is available for tenants. It is possible to install your own signage and to equip and adapt the unit to the tenant’s needs.

Room height approx. 2.6 m.

The premises are ideal for office, service, or retail activities.
Possibility to rent other units with areas ranging from approx. 22–54 m², located on various floors in the same building.

Rental cost: 1,382.11 PLN net (1,700 PLN gross) + utilities – water, electricity, heating (water and heating costs calculated proportionally to the occupied area per m²; electricity according to individual sub-meter).
Two-month deposit.

No energy performance certificate has been issued for the premises.

Contact details: Agata Grela, tel: 692-929-191, E-mail: ag@properco.pl

Informacje ogólne

  • Nr oferty
    PRP-LW-75617
  • Rodzaj
  • Lokalizacja
    Daleszyce
  • Rodzaj budynku
    biurowo-usługowy
  • Pow. całkowita [m2]
    64.30
  • Piętro
    1p
  • Liczba pięter w budynku
    2
  • Cena:
    1 700 PLN
  • Cena za m2
    26 PLN

Nieruchomości

Liczba pięter w budynku
2
Okna
PCV
Powierzchnia użytkowa [m2]
64.30
Rok budowy
2003
Winda
nie
Stan lokalu
do adaptacji
Przeznaczenie lokalu
biurowo - magazynowy, biurowy, handlowo-usługowy, handlowy, usługowy
Instalacje
TakELEKTRYCZNA
Dojazd
asfalt
Ogrzewanie
olejowe
Usytuowanie
dwustronne
Umeblowanie
brak
PROPERCO sp. z o.o. sp.k
Osoba
do kontaktu
Agata Grela 692 929 191 ag@properco.pl

Nr oferty: PRP-LW-75617

Dlaczego my?

Pomagamy w załatwianiu formalności
Pomagamy w załatwianiu formalności
Pomagamy w finansowaniu
Pomagamy w finansowaniu
Profesjonalne sesje zdjęciowe
Profesjonalne sesje zdjęciowe
Oferujemy home staging
Oferujemy home staging