Warszawa: 888 889 661
ul. Brylowska 2/3B
Kielce: 692 024 827
ul. Kozia 3a/1
pl

Kielce, KSM, Aleja Solidarności

94.70 m2 Pokoje: 5 10 000 PLN/m2 947 000 PLN

Opis oferty

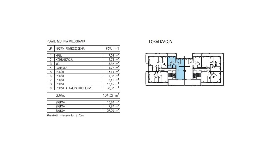
Na sprzedaż 5 - pokojowe mieszkanie o pow. 104,32 m2 dostępne na X piętrze budynku zlokalizowanego w nowej inwestycji, położonej na osiedlu KSM przy Al. Solidarności, oferowane w standardzie deweloperskim.

W skład mieszkania wchodzą:
a) hall (7,08 m2),
b) korytarz (6,76m2),
c) salon z aneksem kuchennym (38,87m2),
d) 4 pokoje (9,82 m2; 8,11 m2; 13,14m2; 12,45m2),
e) łazienka (4,77 m2),
f) WC (3,32 m2).

Do lokalu przynależą 3 balkony o pow. 10,60 m2, 7,80 m2, 37,00 m2.  Ogrzewanie i ciepła woda z sieci miejskiej (brak piecyków gazowych w mieszkaniach).

Planowany termin zakończenia inwestycji: II kwartał 2024. 

Inwestycja składać się będzie z pięciu 10-cio piętrowych budynków, powstających etapami. Pierwszy budynek liczy 100 komfortowych lokali mieszkalnych oraz 6 lokali usługowych. W części podziemnej zaprojektowano dwupoziomowy podziemny garaż.

Na dachu budynku zaprojektowane zostały panele fotowoltaiczne, do obsługi części wspólnych budynku. Teren nieruchomości zostanie ogrodzony i wyposażony w instalacje domofonową i monitoring. Budynki zostaną wyposażone w cichobieżne windy. 

W pobliżu inwestycji znajdują się: Politechnika Świętokrzyska, Uniwersytet Jana Kochanowskiego, szkoła podstawowa, przedszkole, żłobek, centra medyczne, galeria handlowa "Echo". Dogodne połączeniem z centrum miasta i drogami krajowymi.

Adres strony internetowej, o którym mowa w art. 19a ust. 3 ustawy z dnia 20 maja 2021 r. o ochronie praw nabywcy lokalu mieszkalnego lub domu jednorodzinnego oraz Deweloperskim Funduszu Gwarancyjnym to komplexbud(kropka)info

Możliwość zakupu miejsca postojowego w garażu podziemnym na poziomie -1 w cenie 54 000 PLN lub na poziomie -2 w cenie 49 000 PLN.  Możliwość zakupu komórki lokatorskiej w cenie 5 900 PLN/m2
>>Kupujący zwolniony z kosztów obsługi biura i podatku PCC.
Wynagrodzenie biura pokrywa strona sprzedająca.<<

 
Dane kontaktowe do agenta: Jacek Kotlarz, tel: 888 889 441, e-mail: jacek.kotlarz@properco.pl
For more information in English please call: 888 889 441, e-mail: jacek.kotlarz@properco.pl

Informacje ogólne

  • Nr oferty
    PRP-MS-75605
  • Rodzaj
  • Lokalizacja
    Kielce, Aleja Solidarności
  • Dzielnica
    KSM
  • Rodzaj budynku
    blok
  • Pow. całkowita [m2]
    94.70
  • Piętro
    10p
  • Liczba pięter w budynku
    10
  • Cena:
    947 000 PLN
  • Cena za m2
    10 000 PLN

Nieruchomości

Liczba pięter w budynku
10
Rodzaj mieszkania
Jednopoziomowe
Okna
PCV 3 komorowe
Balkon
duży
Liczba balkonów
3
Powierzchnia użytkowa [m2]
94.70
Rok budowy
2024
Winda
tak
Technologia budowlana
cegła
Stan lokalu
deweloperski
Instalacje
Taknowe
Gaz
brak
Woda
ciepła - sieć
Dojazd
asfalt
Ogrzewanie
miejskie

Pomieszczenia

Pokoje
5
Wysokość pomieszczeń
0
PROPERCO sp. z o.o. sp.k
Osoba
do kontaktu
Jacek Kotlarz +48 888 889 441 jacek.kotlarz@properco.pl

Nr oferty: PRP-MS-75605

Dlaczego my?

Pomagamy w załatwianiu formalności
Pomagamy w załatwianiu formalności
Pomagamy w finansowaniu
Pomagamy w finansowaniu
Profesjonalne sesje zdjęciowe
Profesjonalne sesje zdjęciowe
Oferujemy home staging
Oferujemy home staging