Warszawa: 888 889 661
ul. Brylowska 2/3B
Kielce: 692 024 827
ul. Kozia 3a/1
pl

Kielce, KSM, Aleja Solidarności

56.30 m2 Pokoje: 3 9 501 PLN/m2 534 900 PLN

Opis oferty

Na sprzedaż 3 - pokojowe mieszkanie o pow. 56,30 m2 dostępne na IV piętrze budynku zlokalizowanego w nowoczesnej inwestycji, położonej na osiedlu KSM przy Alei Solidarności oraz ul. Górnej, oferowane w standardzie deweloperskim.

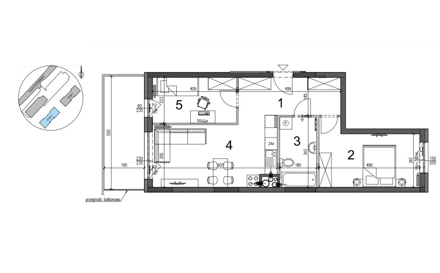
W skład mieszkania wchodzą:
a) hall (pow. 9,10 m2),
b) salon z aneksem kuchennym (pow. 18,67 m2),
c) 2 pokoje (pow. 13,47 m2; 8,99 m2),
d) łazienka (pow. 6,07 m2).

Do lokalu przynależy balkon o powierzchniach 10,75 m2.
 

Ogrzewanie i ciepła woda z sieci miejskiej (brak piecyków gazowych w mieszkaniach).

Planowany termin zakończenia inwestycji: IV kwartał 2025. 

Inwestycja składać się będzie z pięciu 10-cio piętrowych budynków, powstających etapami. Drugi budynek inwestycji zawiera 94 komfortowe mieszkania oraz 6 lokali usługowych. W części podziemnej zaprojektowano dwupoziomowy podziemny garaż. 

Na dachu budynku zaprojektowane zostały panele fotowoltaiczne, do obsługi części wspólnych budynku. Teren nieruchomości zostanie ogrodzony i wyposażony w instalacje domofonową i monitoring. Budynki zostaną wyposażone w cichobieżne windy. Ciepło dostarczane z sieci miejskiej.

W pobliżu inwestycji znajdują się: Politechnika Świętokrzyska, Uniwersytet Jana Kochanowskiego, szkoła podstawowa, przedszkole, żłobek, centra medyczne, galeria handlowa "Echo". Dogodne połączeniem z centrum miasta i drogami krajowymi.

Możliwość zakupu miejsca postojowego w garażu podziemnym na poziomie -1 w cenie 54 000 PLN lub na poziomie -2 w cenie 49 000 PLN.  Możliwość zakupu komórki lokatorskiej w cenie 5 900 PLN/m2
>>Kupujący zwolniony z kosztów obsługi biura i podatku PCC<<

Dane kontaktowe do agenta: Jacek Kotlarz, tel: 888 889 441, e-mail: jacek.kotlarz@properco.pl
For more information in English please call: 888 889 441, e-mail: jacek.kotlarz@properco.pl

Informacje ogólne

  • Nr oferty
    PRP-MS-75604
  • Rodzaj
  • Lokalizacja
    Kielce, Aleja Solidarności
  • Dzielnica
    KSM
  • Rodzaj budynku
    blok
  • Pow. całkowita [m2]
    56.30
  • Piętro
    4p
  • Liczba pięter w budynku
    10
  • Cena:
    534 900 PLN
  • Cena za m2
    9 501 PLN

Nieruchomości

Liczba pięter w budynku
10
Rodzaj mieszkania
Jednopoziomowe
Okna
PCV 3 komorowe
Balkon
duży
Liczba balkonów
1
Powierzchnia użytkowa [m2]
56.30
Rok budowy
2025
Winda
tak
Technologia budowlana
cegła
Stan lokalu
deweloperski
Instalacje
Taknowe
Gaz
brak
Woda
ciepła - miejska
Dojazd
asfalt
Ogrzewanie
miejskie
Usytuowanie
dwustronne

Pomieszczenia

Pokoje
3
Wysokość pomieszczeń
0
PROPERCO sp. z o.o. sp.k
Osoba
do kontaktu
Jacek Kotlarz +48 888 889 441 jacek.kotlarz@properco.pl

Nr oferty: PRP-MS-75604

Dlaczego my?

Pomagamy w załatwianiu formalności
Pomagamy w załatwianiu formalności
Pomagamy w finansowaniu
Pomagamy w finansowaniu
Profesjonalne sesje zdjęciowe
Profesjonalne sesje zdjęciowe
Oferujemy home staging
Oferujemy home staging