Warszawa: 888 889 661
ul. Brylowska 2/3B
Kielce: 692 024 827
ul. Kozia 3a/1
pl

Kielce, Czarnów

48.00 m2 Pokoje: 2 7 813 PLN/m2 375 000 PLN

Opis oferty

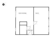
Na sprzedaż 2-pokojowe mieszkanie, o powierzchni 48 m2, zlokalizowane na drugim piętrze w 4- piętrowym bloku, przy ul. Jagiellońskiej.

W skład pomieszczeń wchodzą:
- salon z aneksem kuchennym o pow. ok. 18,5 m2
- pokój o pow ok 22 m2
- łazienka wraz z WC o pow. ok. 2,4 m2
- przedpokój o pow. ok. 2,5 m2

Mieszkanie ciepłe, dwustronne  z wystawą okien na północ i południe.
Ogrzewanie z sieci miejskiej, ciepła woda z piecyka gazowego. 
Mieszkanie w pierwotnej postaci posiadało 3 pokoje.

Do mieszkania przynależy piwnica. Na zewnątrz ogólnodostępne miejsca postojowe dla mieszkańców. 

Mieszkanie usytuowane w dobrej lokalizacji, z dostępem do wszelkiej infrastruktury: w sąsiedztwie liczne sklepy, szkoły, przystanki autobusowe. W mieszkaniu przyłącze internetowe i TV kablowej.

Czynsz administracyjny ok. 480 PLN / 1 os. (w tym zaliczki na: ogrzewanie, wodę, fundusz remontowy, śmieci)  +  prąd i gaz do kuchenki, płatne według zużycia. 

Dla nieruchomości nie sporządzono świadectwa charakterystyki energetycznej.

Dane kontaktowe do agenta: Magdalena Prokopoudi Tel: 888-889-594 E-mail: magdalena.prokopoudi@properco.pl PROPERCO Nieruchomości - Kielce, ul. Kozia 3A/1

For service in English call Magdalena Prokopoudi at +48 888-889-594

-------

For sale a 2-room apartment with an area of 48 m2, located on the second floor in a 4-storey block at Jagiellońska Street.

The rooms comprise:

  • living room with kitchenette of approx. 18.5 m2

  • room of approx. 22 m2

  • bathroom with WC of approx. 2.4 m2

  • hall of approx. 2.5 m2

Warm, dual-aspect apartment with windows facing north and south.
Heating from the district network, hot water from a gas water heater.
Originally the apartment had 3 rooms.

A basement storage room belongs to the apartment. Outside there are public parking spaces for residents.

The apartment is situated in a good location with access to full infrastructure: nearby numerous shops, schools, bus stops. Internet and cable TV connection in the apartment.

Administrative fee approx. 480 PLN / 1 person (including advances for heating, water, renovation fund, waste) + electricity and gas for the cooker, payable according to consumption.

No energy performance certificate has been prepared for the property.

Contact details for the agent: Magdalena Prokopoudi Tel: 888-889-594 E-mail: magdalena.prokopoudi@properco.pl, PROPERCO Nieruchomości - Kielce, ul. Kozia 3A/1

Informacje ogólne

  • Nr oferty
    PRP-MS-75490
  • Rodzaj
  • Lokalizacja
    Kielce
  • Dzielnica
    Czarnów
  • Rodzaj budynku
    blok
  • Pow. całkowita [m2]
    48.00
  • Piętro
    2p
  • Liczba pięter w budynku
    4
  • Cena:
    375 000 PLN
  • Cena za m2
    7 813 PLN

Nieruchomości

Liczba pięter w budynku
4
Rodzaj mieszkania
Jednopoziomowe
Okna
PCV
Balkon
brak
Powierzchnia użytkowa [m2]
48.00
Rok budowy
1972
Winda
nie
Technologia budowlana
cegła
Stan lokalu
dobry
Instalacje
Takdobre
Gaz
tak - miejski
Woda
ciepła - piecyk gazowy
Dojazd
ASFALTOWA
Ogrzewanie
kominkowe
Usytuowanie
dwustronne

Pomieszczenia

Pokoje
2
Wysokość pomieszczeń
0
Liczba łazienek
1
Kuchnia
Rodzaj kuchni
aneks kuchenny
Lazienka
Liczba
1
PROPERCO sp. z o.o. sp.k
Osoba
do kontaktu
Magdalena Prokopoudi +48 888 889 594 magdalena.prokopoudi@properco.pl

Nr oferty: PRP-MS-75490

Dlaczego my?

Pomagamy w załatwianiu formalności
Pomagamy w załatwianiu formalności
Pomagamy w finansowaniu
Pomagamy w finansowaniu
Profesjonalne sesje zdjęciowe
Profesjonalne sesje zdjęciowe
Oferujemy home staging
Oferujemy home staging