Warszawa: 888 889 661
ul. Brylowska 2/3B
Kielce: 692 024 827
ul. Kozia 3a/1
pl

Kielce, Szydłówek, Klonowa

25.29 m2 Pokoje: 1 11 070 PLN/m2 279 960 PLN

Opis oferty

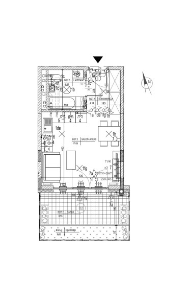
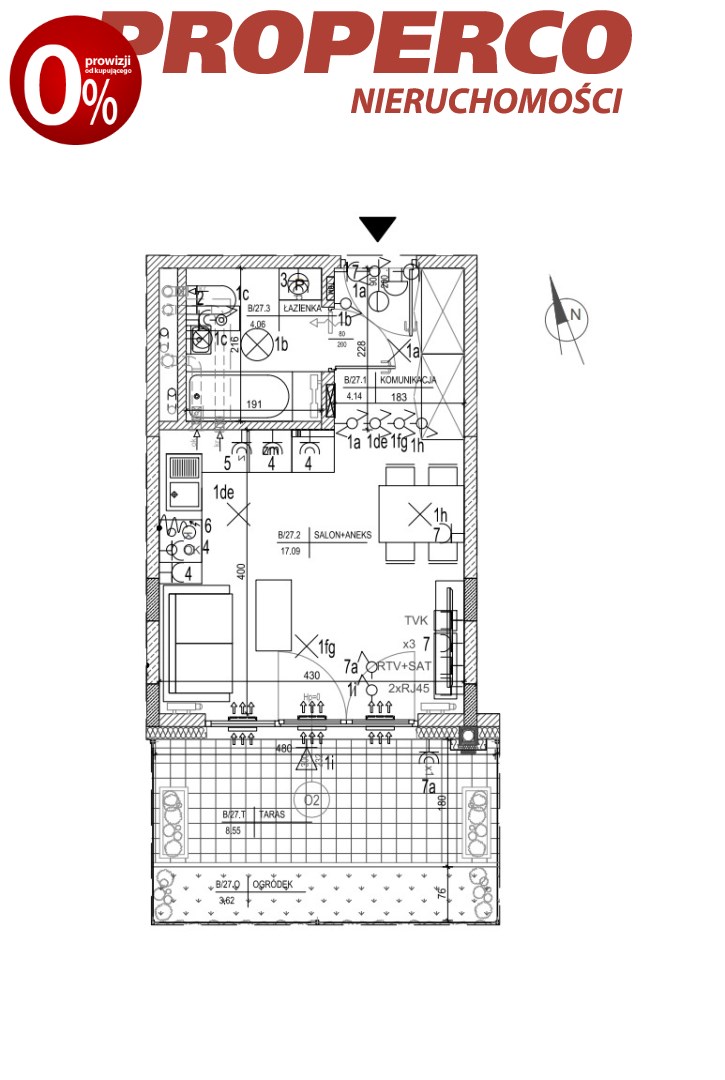
Na sprzedaż zespół pokojowy, o pow. 25,29 m2, dostępny na parterze budynku zlokalizowanego w nowoczesnej inwestycji położonej przy ul. Klonowej, w sąsiedztwie Zalewu Kieleckiego i lasu/parku nad zalewem. Mieszkanie jest oferowane w standardzie deweloperskim. 

W skład mieszkania wchodzi:
- salon z aneksem kuchennym (17,09 m2),
- łazienka (4,06 m2),
- komunikacja (4,14 m2).

Do lokalu przynależy taras o pow. 8,55 m2 oraz ogródek 3,62 m2. 

Ogrzewanie i ciepła woda z sieci miejskiej.

Inwestycja zlokalizowana jest w spokojnej części Kielc, blisko terenów rekreacyjnych. Składać się będzie z 3 budynków, w których łącznie zaprojektowano 47 mieszkań, 15 zespołów pokojowych i 2 lokale usługowe. 
Budynki zostaną wyposażone w cichobieżne windy.  Adres strony internetowej, o którym mowa w art. 19a ust. 3 ustawy z dnia 20 maja 2021 r. o ochronie praw nabywcy lokalu mieszkalnego lub domu jednorodzinnego oraz Deweloperskim Funduszu Gwarancyjnym to becher(kropka)pl. Adres strony został ujęty fonetycznie.

Możliwość zakupu komórki lokatorskiej w cenie 6000 PLN/m2.

Termin zakończenia inwestycji: IV kwartał 2026 r.

 
>> Kupujący zwolniony z kosztów obsługi biura i podatku PCC <<

Sprzedaż inwestycji prowadzi biuro PROPERCO.pl - Kielce, ul. Kozia 3A/1.

Dane kontaktowe do agenta: Krzysztof Jakubowski  Tel: 888 889 568 E-mail: krzysztof.jakubowski@properco.pl

Informacje ogólne

  • Nr oferty
    PRP-MS-75465
  • Rodzaj
  • Lokalizacja
    Kielce, Klonowa
  • Dzielnica
    Szydłówek
  • Rodzaj budynku
    budynek wielorodzinny
  • Pow. całkowita [m2]
    25.29
  • Piętro
    parter
  • Liczba pięter w budynku
    4
  • Cena:
    279 960 PLN
  • Cena za m2
    11 070 PLN

Nieruchomości

Liczba pięter w budynku
4
Rodzaj mieszkania
Jednopoziomowe
Okna
PCV
Powierzchnia użytkowa [m2]
25.29
Rok budowy
2026
Winda
tak
Stan lokalu
deweloperski
Instalacje
Taknowe
Woda
ciepła - miejska
Dojazd
ASFALTOWA
Ogrzewanie
C.O. miejskie

Pomieszczenia

Pokoje
1
Wysokość pomieszczeń
0
Liczba przedpokoi
1
Kuchnia
Typ pomieszczenia
aneks kuchenny - połączony z salonem
Lazienka
Typ pomieszczenia
razem z wc
Przedpokoj
Liczba
1
PROPERCO sp. z o.o. sp.k
Osoba
do kontaktu
Krzysztof Jakubowski +48 888 889 568 krzysztof.jakubowski@properco.pl

Nr oferty: PRP-MS-75465

Dlaczego my?

Pomagamy w załatwianiu formalności
Pomagamy w załatwianiu formalności
Pomagamy w finansowaniu
Pomagamy w finansowaniu
Profesjonalne sesje zdjęciowe
Profesjonalne sesje zdjęciowe
Oferujemy home staging
Oferujemy home staging