Warszawa: 888 889 661
ul. Brylowska 2/3B
Kielce: 692 024 827
ul. Kozia 3a/1
pl

Sitkówka-Nowiny, Szewce

1228.00 m2 309 PLN/m2 380 000 PLN

Opis oferty

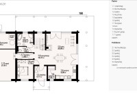
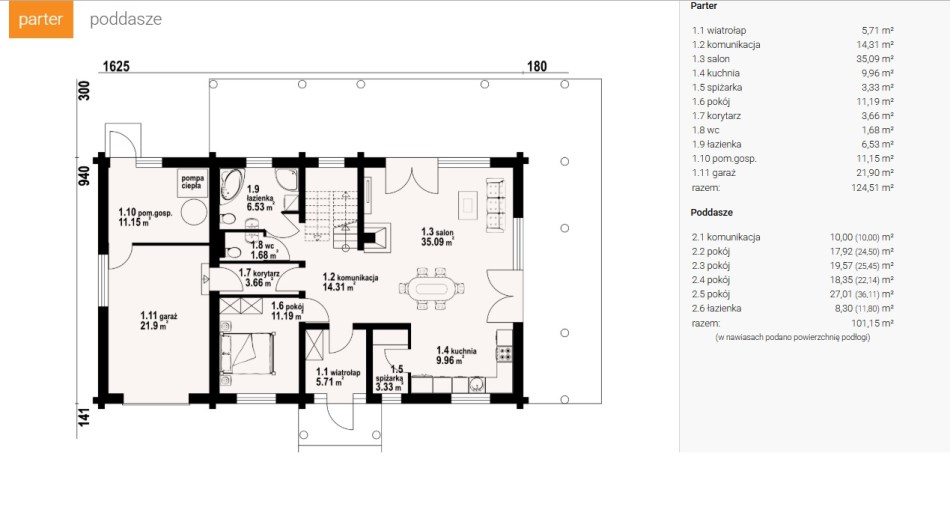
Na sprzedaż działka o powierzchni 1228m2, zlokalizowana w Szewchach, gm. Nowiny. Działka płaska, z rozpoczęta budową; fundament wylany pod dom "Milicz DW 77".

Wymiary działki: 47 x 27 x 38 x 30 [m]. Szerokość od frontu: 47 m 
 
Pozwolenie na budowę budynku zostało wydane w 2021. Fundament wykonany w 2022. Instalacje wod- kan zostały już wyprowadzone, materiał fundamentu: piasek ubity + styropian 15 cm na podłogę + wylewka 10 cm.  Właściciele zostawiają już wysuszone drewno na budowę, zabezpieczone pod plandeką.
Dojazd do działki drogą asfaltową + bezpośrednio do działki drogą utwardzoną.

Teren, na którym znajduje się działka  jest objęty Miejscowym Planem Zagospodarowania Przestrzennego -- MN - tereny zabudowy mieszkaniowej jednorodzinnej.

Media:
- prąd - na działce,
- gaz - w ulicy w odległości ok. 50m,
- woda - w ulicy przy działce,
- kanalizacja -  obecnie brak, ale została podpisana umowa na wykonanie kanalizacji w drodze dojazdowej.

Nieruchomość zlokalizowana w odległości 15 km od centrum Kielc.  W sąsiedztwie nowa zabudowa jednorodzinna. Bliska odległość do sklepów, szkół, przychodni i ścieżek rowerowych.

Bardzo korzystna lokalizacja. Szybki dojazd do Kielc. W sąsiedztwie domy jednorodzinne, lasy.

Dane kontaktowe do agenta: Jacek Kotlarz, tel: 888 889 441, e-mail: jacek.kotlarz@properco.pl
For more information in English please call: 888 889 441, e-mail: jacek.kotlarz@properco.pl


______

 

For sale: a plot of land with an area of 1228 m², located in Szewce, Nowiny municipality. The plot is flat, with construction already started; foundations have been laid for the house design "Milicz DW 77".

Plot dimensions: 47 x 27 x 38 x 30 m.
Front width: 47 m.

A building permit was issued in 2021. Foundations were made in 2022. Water and sewage installations have already been brought out. Foundation materials: compacted sand + 15 cm styrofoam under the floor + 10 cm concrete screed. The owners are leaving already dried construction timber, stored under a tarpaulin.

Access to the plot via an asphalt road and then directly to the property via a hardened road.

The land is covered by the Local Spatial Development Plan – MN – single-family housing area.

Utilities:

  • electricity – on the plot,

  • gas – in the street, approx. 50 m away,

  • water – in the street by the plot,

  • sewage – currently unavailable, but an agreement has been signed for sewage installation in the access road.

The property is located 15 km from the centre of Kielce. In the vicinity, there are new single-family houses. Close distance to shops, schools, a health centre and cycling paths.

Very attractive location. Quick access to Kielce. Surrounded by single-family houses and forests.

For more information in English please call: 888 889 441, e-mail: jacek.kotlarz@properco.pl

Informacje ogólne

  • Nr oferty
    PRP-GS-75451
  • Rodzaj
  • Lokalizacja
    Sitkówka-Nowiny
  • Dzielnica
    Szewce
  • Pow. całkowita [m2]
    1228.00
  • Cena:
    380 000 PLN
  • Cena za m2
    309 PLN

Nieruchomości

Zagospodarowanie działki
Niezagospodarowana
Ukształtowanie działki
płaska
Kształt działki
prostokąt
Ogrodzenie działki
brak
Gaz
w ulicy
Woda
w ulicy
Kanalizacja
szambo
Prąd
jest
Dojazd
droga utwardzona
PROPERCO sp. z o.o. sp.k
Osoba
do kontaktu
Jacek Kotlarz +48 888 889 441 jacek.kotlarz@properco.pl

Nr oferty: PRP-GS-75451

Dlaczego my?

Pomagamy w załatwianiu formalności
Pomagamy w załatwianiu formalności
Pomagamy w finansowaniu
Pomagamy w finansowaniu
Profesjonalne sesje zdjęciowe
Profesjonalne sesje zdjęciowe
Oferujemy home staging
Oferujemy home staging