Warszawa: 888 889 661
ul. Brylowska 2/3B
Kielce: 692 024 827
ul. Kozia 3a/1
pl

Warszawa, Wola, Górczewska

400.00 m2 37 PLN/m2 14 760 PLN

Opis oferty

Do wynajęcia lokal o powierzchni ok. 400 m2 usytuowany na 1 piętrze w wolnostojącym budynku, w kompleksie usługowo-przemysłowym na Woli.

Lokal może być zaaranżowany do działalności usługowej, produkcyjnej i biurowej.
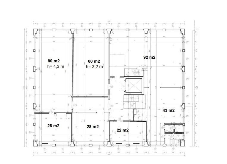
W skład lokalu wchodzą: 6 pomieszczeń: 80 m2 (h= 4,3 m), 60 m2 (h= 3,2 m), 92 m2, 22 m2, 2 x 28 m2; aneks kuchenny 43 m2, 2x WC, korytarz.
Wysokość pomieszczeń: 2,66 m - 3,2 m - 4,3 m. 
Opcja korzystania z windy towarowej.
Ogrzewanie elektryczne - klimatyzacja w każdym pomieszczeniu, oprócz pomieszczenia o pow. 80 m2.
Dla nieruchomości nie sporządzono świadectwa charakterystyki energetycznej.

Czynsz najmu 12000 PLN netto (14760 PLN brutto) + opłata eksploatacyjna 1000 PLN netto (1230 PLN brutto) + prąd 3000 PLN netto (3 690 PLN brutto) + woda. 
W cenie najmu 3 zewnętrzne miejsca parkingowe, alarm i ochrona. 
Kaucja dwumiesięczna (28 000 PLN). 

Komunikacja miejska: przystanki autobusowe i stacja metra Ulrychów (600 m), centrum handlowe Wola Park 

Dane kontaktowe do agenta: Agnieszka Pankanin Tel: 888-889-659 E-mail: ap@properco.pl 

For English service, contact Jacek: +48 888-889-441, jacek.kotlarz@properco.pl

---

For rent: premises with an area of approx. 400 m² located on the 1st floor of a detached building, in a service and industrial complex in Wola.

The space can be arranged for service, production, or office use.
The premises include: 6 rooms: 80 m² (h = 4.3 m), 60 m² (h = 3.2 m), 92 m², 22 m², 2 x 28 m²; kitchenette 43 m², 2x WC, corridor.
Ceiling height: 2.66 m – 3.2 m – 4.3 m.
Option to use a freight elevator.
Electric heating – air conditioning in every room except the 80 m² room.
No energy performance certificate has been prepared for the property.

Rent: PLN 12,000 net (PLN 14,760 gross) + service charge PLN 1,000 net (PLN 1,230 gross) + electricity PLN 3,000 net (PLN 3,690 gross) + water.
The rent includes 3 outdoor parking spaces, alarm system, and security.
Security deposit: two months’ rent (PLN 28,000).

Public transport: bus stops and Ulrychów metro station (600 m), Wola Park shopping center.


For English service, contact Jacek: +48 888-889-441, jacek.kotlarz@properco.pl

Informacje ogólne

  • Nr oferty
    PRP-LW-75165
  • Rodzaj
  • Lokalizacja
    Warszawa, Górczewska
  • Dzielnica
    Wola
  • Rodzaj budynku
    budynek wolnostojący
  • Pow. całkowita [m2]
    400.00
  • Piętro
    1p
  • Liczba pięter w budynku
    1
  • Cena:
    14 760 PLN
  • Cena za m2
    37 PLN

Nieruchomości

Liczba pięter w budynku
1
Powierzchnia użytkowa [m2]
400.00
Winda
tak
Stan lokalu
do wprowadzenia
Przeznaczenie lokalu
biurowy, magazynowy, usługowy
Ogrzewanie
elektryczne
Klimatyzacja
Tak
Umeblowanie
brak
Własny parking
Tak

Pomieszczenia

Wysokość pomieszczeń
4,3000
PROPERCO sp. z o.o. sp.k
Osoba
do kontaktu
Agnieszka Pankanin +48 888 889 659 ap@properco.pl

Nr oferty: PRP-LW-75165

Dlaczego my?

Pomagamy w załatwianiu formalności
Pomagamy w załatwianiu formalności
Pomagamy w finansowaniu
Pomagamy w finansowaniu
Profesjonalne sesje zdjęciowe
Profesjonalne sesje zdjęciowe
Oferujemy home staging
Oferujemy home staging