Warszawa: 888 889 661
ul. Brylowska 2/3B
Kielce: 692 024 827
ul. Kozia 3a/1
pl

Kielce,

650.00 m2 20 PLN/m2 13 150 PLN

Opis oferty

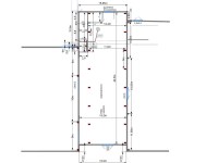
Do wynajęcia hala o powierzchni 650 m2, zlokalizowana w południowej części miasta, o wymiarach: 42,5 m x 15,3 m.
Wysokość hali: 8m.
Dwie bramy o wymiarach: szer. 3,5 m x wys. 3,6 m. Suwnica o udźwigu 4 ton, po remoncie.
Hala bez rampy. Wjazd z poziomu gruntu. Oświetlenie naturalne (okna i świetliki dachowe) i sztuczne (lampy). Wylewka betonowa. Podłączona woda i kanalizacja. Hala nieogrzewana. Możliwość zamontowania nagrzewnic. Przed halą utwardzony plac manewrowy dla TIRów (asfalt i trelinka).
POMIESZCZENIA SOCJALNE 30m2: łazienki, WC i prysznice.

Dostęp do siły (przyłącze do 100kW).
Cena obejmuje ochronę obiektu przez firmę z koncesją
Dostęp do przedmiotu najmu 24h/7dni

Cena najmu: 13150 PLN netto (16 174,5 PLN brutto) + media (prąd, woda) wg wskazań liczników.
W sąsiedztwie liczne centra logistyczne, obiekty przemysłowe, przystanki MPK.

Dane kontaktowe do agenta: Jacek Kotlarz, tel: 888 889 441, e-mail: jacek.kotlarz@properco.pl
For more information in English please call: 888 889 441, e-mail: jacek.kotlarz@properco.pl

-------


For rent: hall with an area of 650 m², located in the southern part of the city, with dimensions approx. 42,5 m x 15,3 m.
Hall height: 8 m
Two gates with dimensions: width 3.5 m x height 3.6 m. Equipped with an overhead crane with a lifting capacity of 4 tons (recently renovated).
The hall has no ramp — ground-level access. Natural lighting (windows and roof skylights) and artificial lighting (lamps). Concrete floor. Connected to water and sewage system. The hall is unheated, with the option to install heaters. In front of the hall, there is a paved maneuvering area for TIR trucks (asphalt and concrete pavers).

SOCIAL AREA 30 m²: bathrooms, WC, and showers.

Access to three-phase power (connection up to 100 kW).
The price includes security provided by a licensed company.
Access to the leased premises 24/7.

Rental price:
13 150 PLN net (16 174,5 PLN gross) + utilities (electricity, water) according to meter readings.
The area is surrounded by logistics centers, industrial facilities, and public transport stops.

Contact details for the agent: Jacek Kotlarz, tel: 888 889 441, e-mail: jacek.kotlarz@properco.pl

Informacje ogólne

  • Nr oferty
    PRP-HW-75134
  • Rodzaj
  • Lokalizacja
    Kielce
  • Pow. całkowita [m2]
    650.00
  • Cena:
    13 150 PLN
  • Cena za m2
    20 PLN

Nieruchomości

Rok budowy
1978
Dojazd
asfalt
Ogrzewanie
brak
PROPERCO sp. z o.o. sp.k
Osoba
do kontaktu
Jacek Kotlarz +48 888 889 441 jacek.kotlarz@properco.pl

Nr oferty: PRP-HW-75134

Dlaczego my?

Pomagamy w załatwianiu formalności
Pomagamy w załatwianiu formalności
Pomagamy w finansowaniu
Pomagamy w finansowaniu
Profesjonalne sesje zdjęciowe
Profesjonalne sesje zdjęciowe
Oferujemy home staging
Oferujemy home staging