Warszawa: 888 889 661
ul. Brylowska 2/3B
Kielce: 692 024 827
ul. Kozia 3a/1
pl

Kielce, Centrum

115.80 m2 45 PLN/m2 5 200 PLN

Opis oferty

Do wynajęcia lokal handlowo-usługowy o pow. 115,80 m2 zlokalizowany w centrum Kielc. Obecnie w lokalu funkcjonuje apteka -  nieruchomość została zaopiniowana i zatwierdzona wg przepisów prawa farmaceutycznego.
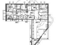
W skład lokalu wchodzą: sala sprzedaży, sala recepturowa, zmywalnia, magazyn, archiwum, magazyn opakowań, pomieszczenie porządkowe, pokój socjalny, pomieszczenie kierownika i szkoleń, komora przyjęć.

Bardzo dobra lokalizacja, w pobliżu duże osiedle mieszkaniowe, ruch pieszy i samochodów.

Czynsz najmu wynosi 5200 zł + czynsz administracyjny ok. 850 zł (w tym zaliczki na CO, wodę, fundusz remontowy i śmieci) + opłaty wg. liczników za prąd.

Kaucja jednomiesięczna.

Cena do negocjacji.

Dla lokalu nie sporządzono świadectwa charakterystyki energetycznej.

Dane kontaktowe do agenta: Krzysztof Jakubowski, tel: 888 889 568, e-mail: krzysztof.jakubowski@properco.pl
For more information in English please call: 888 889 441, e-mail: jacek.kotlarz@properco.pl


___



For rent: a commercial and service premises with an area of 115.80 m², located in the center of Kielce. The property currently operates as a pharmacy and has been reviewed and approved in accordance with pharmaceutical law regulations.

The premises consist of: a sales area, compounding room, washroom, storage, archive, packaging storage, cleaning room, staff room, manager and training room, and a receiving area.

Excellent location near a large residential estate with significant foot and vehicle traffic.

The rental price is 5200 PLN + administrative fee of approx. 850 PLN (includes heating, water, renovation fund, and waste disposal) + utility bills (electricity) according to meter readings.

One-month deposit required.

No Energy Performance Certificate has been issued for this premises.

For more information in English please call: 888 889 441, e-mail: jacek.kotlarz@properco.pl

Informacje ogólne

  • Nr oferty
    PRP-LW-73883
  • Rodzaj
  • Lokalizacja
    Kielce
  • Dzielnica
    Centrum
  • Rodzaj budynku
    blok
  • Pow. całkowita [m2]
    115.80
  • Piętro
    parter
  • Liczba pięter w budynku
    3
  • Cena:
    5 200 PLN
  • Cena za m2
    45 PLN

Nieruchomości

Liczba pięter w budynku
3
Okna
nowe PCV
Powierzchnia użytkowa [m2]
115.80
Rok budowy
2012
Stan lokalu
do odświeżenia
Przeznaczenie lokalu
handlowy, usługowy
Dojazd
asfalt
Ogrzewanie
miejskie
Klimatyzacja
Tak

Pomieszczenia

Wysokość pomieszczeń
3
PROPERCO sp. z o.o. sp.k
Osoba
do kontaktu
Krzysztof Jakubowski +48 888 889 568 krzysztof.jakubowski@properco.pl

Nr oferty: PRP-LW-73883

Dlaczego my?

Pomagamy w załatwianiu formalności
Pomagamy w załatwianiu formalności
Pomagamy w finansowaniu
Pomagamy w finansowaniu
Profesjonalne sesje zdjęciowe
Profesjonalne sesje zdjęciowe
Oferujemy home staging
Oferujemy home staging