Warszawa: 888 889 661
ul. Brylowska 2/3B
Kielce: 692 024 827
ul. Kozia 3a/1
pl

Kielce, , Maciejówka

75.94 m2 Pokoje: 4 7 600 PLN/m2 577 144 PLN

Opis oferty

Nowoczesny apartament o powierzchni użytkowej 75,94 m2, zlokalizowany w Kielcach-Maciejówce. Mieszkanie znajduje się na piętrze nowego budynku, usytuowanego na kameralnym osiedlu domów w zabudowie szeregowej, w pobliżu terenów zielonych. W trosce o komfort i bezpieczeństwo mieszkańców teren będzie ogrodzony, monitorowany całodobowo przy pomocy systemu kamer.

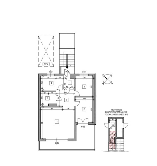
W skład mieszkania wchodzą:
- salon z aneksem kuchennym 28,35 m²,
- sypialnia/pokój 10,06 m2,
- sypialnia/pokój 12,33 m2,
- sypialnia/pokój 8,69 m2
- łazienka 5,49 m2,
- hol 7,73m2,
- wiatrołap 3,29m2,


Do każdego lokalu przynależy naziemne miejsce parkingowe w cenie mieszkania. Każdy lokal będzie wyposażony w kocioł gazowy kondensacyjny do podgrzania wody użytkowej i na potrzeby centralnego ogrzewania.

Termin zakończenia inwestycji:  IV kwartał 2024 r. 

Osiedle składa się z trzydziestu apartamentów w zabudowie szeregowej, z funkcjonalnymi rozkładami pomieszczeń. Budynki zaprojektowane zostały w sposób ułatwiający dostęp do nich osobom niepełnosprawnym.

Duże tarasy przynależne do mieszkań na kondygnacji pierwszej oraz przestronne ogródki znajdujące się na parterze tworzą urokliwe, prywatne miejsca do odpoczynku i relaksu. Ciepły wizerunek osiedla jest zasługą odpowiedniego doboru materiałów elewacyjnych i ich kolorów. Na elewacjach dominują biele i brązy tynków. Zapraszamy do kontaktu z naszym agentem. Adres strony internetowej, o którym mowa w art. 19a ust. 3 ustawy z dnia 20 maja 2021 r. o ochronie praw nabywcy lokalu mieszkalnego lub domu jednorodzinnego oraz Deweloperskim Funduszu Gwarancyjnym to pbumroz(kropka)pl  Adres strony został ujęty fonetycznie

>>Kupujący zwolniony z kosztów obsługi biura i podatku PCC<<

Dane kontaktowe do agenta: Jacek Kotlarz, tel: 888 889 441, e-mail: jacek.kotlarz@properco.pl
For more information in English please call: 888 889 441, e-mail: jacek.kotlarz@properco.pl

___

 

A modern apartment with a usable area of 75,94 m², located in Kielce-Maciejówka. The apartment is situated on the upper floor of a new building, part of an intimate estate of terraced houses, surrounded by green areas. For the comfort and safety of residents, the area will be fenced and monitored 24/7 by a camera system.

The apartment includes:

  • Living room witch kitchenette 28,35 m²
  • Bedroom/room: 10.06 m²
  • Bedroom/room: 12.33 m²
  • Bedroom/room: 8.69 m²
  • Bathroom: 5.49 m²
  • Hallway: 7.73 m²
  • Vestibule: 3.29 m².

Each unit comes with a ground-level parking space included in the price. Every apartment will be equipped with a condensing gas boiler for hot water and central heating.

Completion date: Q4 2024.

The estate consists of thirty terraced apartments with functional layouts. The buildings are designed to facilitate access for people with disabilities.

Large terraces on the first-floor apartments and spacious gardens on the ground floor create charming, private places for relaxation. The warm appearance of the estate is due to the carefully selected facade materials and colors, with white and brown tones dominating the exterior. Please contact our agent for more information. The website address referred to in Article 19a, paragraph 3 of the Act of 20 May 2021 on the protection of the rights of purchasers of residential premises or single-family houses and on the Developer Guarantee Fund is pbumroz(dot)pl  The website address is spelled phonetically.

>> Buyers are exempt from agency fees and PCC tax <<

For more information in English please call: 888 889 441, e-mail: jacek.kotlarz@properco.pl

Informacje ogólne

  • Nr oferty
    PRP-MS-73795
  • Rodzaj
  • Lokalizacja
    Kielce, Maciejówka
  • Rodzaj budynku
    bliźniak
  • Pow. całkowita [m2]
    75.94
  • Piętro
    1p
  • Liczba pięter w budynku
    1
  • Cena:
    577 144 PLN
  • Cena za m2
    7 600 PLN

Nieruchomości

Liczba pięter w budynku
1
Rodzaj mieszkania
Jednopoziomowe
Okna
PCV
Powierzchnia użytkowa [m2]
75.94
Rok budowy
2024
Winda
nie
Stan lokalu
deweloperski
Instalacje
Taknowe
Gaz
jest
Woda
piecyk gazowy
Dojazd
ASFALTOWA
Ogrzewanie
C.O. GAZOWE

Pomieszczenia

Pokoje
4
Wysokość pomieszczeń
0
Liczba przedpokoi
1
Kuchnia
Typ pomieszczenia
aneks kuchenny - połączony z jadalnią
Lazienka
Typ pomieszczenia
razem z wc
Przedpokoj
Liczba
1
PROPERCO sp. z o.o. sp.k
Osoba
do kontaktu
Jacek Kotlarz +48 888 889 441 jacek.kotlarz@properco.pl

Nr oferty: PRP-MS-73795

Dlaczego my?

Pomagamy w załatwianiu formalności
Pomagamy w załatwianiu formalności
Pomagamy w finansowaniu
Pomagamy w finansowaniu
Profesjonalne sesje zdjęciowe
Profesjonalne sesje zdjęciowe
Oferujemy home staging
Oferujemy home staging