Warszawa: 888 889 661
ul. Brylowska 2/3B
Kielce: 692 024 827
ul. Kozia 3a/1
pl

Kielce,

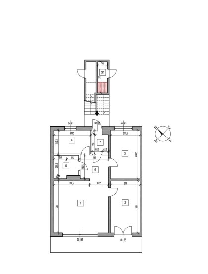
83.62 m2 Pokoje: 4 7 900 PLN/m2 660 598 PLN

Opis oferty

Nowoczesny apartament o powierzchni użytkowej 83,62 m2, wraz z ogródkiem i tarasem, zlokalizowany zlokalizowany w Kielcach-Maciejówce. Mieszkanie znajduje się na parterze nowego budynku, usytuowanego na kameralnym osiedlu domów w zabudowie szeregowej, w pobliżu terenów zielonych. W trosce o komfort i bezpieczeństwo mieszkańców teren będzie ogrodzony, monitorowany całodobowo przy pomocy systemu kamer.

W skład mieszkania wchodzą:
- salon z aneksem kuchennym 28,40 m²,
- sypialnia/pokój 14,64 m2,
- sypialnia/pokój 15,44 m2,
- sypialnia/pokój 8,94 m2
- łazienka 5,44 m2,
- hol 7,07 m2,
- wiatrołap 3,69 m2.

Do każdego lokalu przynależy naziemne miejsce parkingowe w cenie mieszkania. Każdy lokal będzie wyposażony w kocioł gazowy kondensacyjny do podgrzania wody użytkowej i na potrzeby centralnego ogrzewania.

Termin zakończenia inwestycji:  II kwartał 2024 r. 

Osiedle składa się z trzydziestu apartamentów w zabudowie szeregowej, z funkcjonalnymi rozkładami pomieszczeń. Budynki zaprojektowane zostały w sposób ułatwiający dostęp do nich osobom niepełnosprawnym.

Duże tarasy przynależne do mieszkań na kondygnacji pierwszej oraz przestronne ogródki znajdujące się na parterze tworzą urokliwe, prywatne miejsca do odpoczynku i relaksu. Ciepły wizerunek osiedla jest zasługą odpowiedniego doboru materiałów elewacyjnych i ich kolorów. Na elewacjach dominują biele i brązy tynków. Zapraszamy do kontaktu z naszym agentem. 
Adres strony internetowej, o którym mowa w art. 19a ust. 3 ustawy z dnia 20 maja 2021 r. o ochronie praw nabywcy lokalu mieszkalnego lub domu jednorodzinnego oraz Deweloperskim Funduszu Gwarancyjnym to pbumroz(kropka)pl  Adres strony został ujęty fonetycznie.


>>Kupujący zwolniony z kosztów obsługi biura i podatku PCC<<


Dane kontaktowe do agenta: Jacek Kotlarz, tel: 888 889 441, e-mail: jacek.kotlarz@properco.pl
For more information in English please call: 888 889 441, e-mail: jacek.kotlarz@properco.pl

 

Informacje ogólne

  • Nr oferty
    PRP-MS-73791
  • Rodzaj
  • Lokalizacja
    Kielce
  • Rodzaj budynku
    bliźniak
  • Pow. całkowita [m2]
    83.62
  • Piętro
    parter
  • Cena:
    660 598 PLN
  • Cena za m2
    7 900 PLN

Nieruchomości

Rodzaj mieszkania
Apartament
Okna
PCV
Powierzchnia użytkowa [m2]
83.62
Rok budowy
2024
Winda
nie
Stan lokalu
deweloperski
Instalacje
Taknowe
Gaz
jest
Woda
piecyk gazowy
Dojazd
ASFALTOWA
Ogrzewanie
C.O. GAZOWE

Pomieszczenia

Pokoje
4
Wysokość pomieszczeń
0
Liczba przedpokoi
1
Kuchnia
Typ pomieszczenia
aneks kuchenny - połączony z jadalnią
Lazienka
Typ pomieszczenia
razem z wc
Przedpokoj
Liczba
1
PROPERCO sp. z o.o. sp.k
Osoba
do kontaktu
Jacek Kotlarz +48 888 889 441 jacek.kotlarz@properco.pl

Nr oferty: PRP-MS-73791

Dlaczego my?

Pomagamy w załatwianiu formalności
Pomagamy w załatwianiu formalności
Pomagamy w finansowaniu
Pomagamy w finansowaniu
Profesjonalne sesje zdjęciowe
Profesjonalne sesje zdjęciowe
Oferujemy home staging
Oferujemy home staging