Warszawa: 888 889 661
ul. Brylowska 2/3B
Kielce: 692 024 827
ul. Kozia 3a/1
pl

Warszawa, Bielany

263.51 m2 53 PLN/m2 14 000 PLN

Opis oferty

Do wynajęcia 2 moduły biurowe o łącznej pow. 263,51 m2, zlokalizowane w nowoczesnym biurowcu na  Bielanach. Budynek oddany w 2023 roku, wykończony w standardzie klasy A

Rozkład powierzchni:
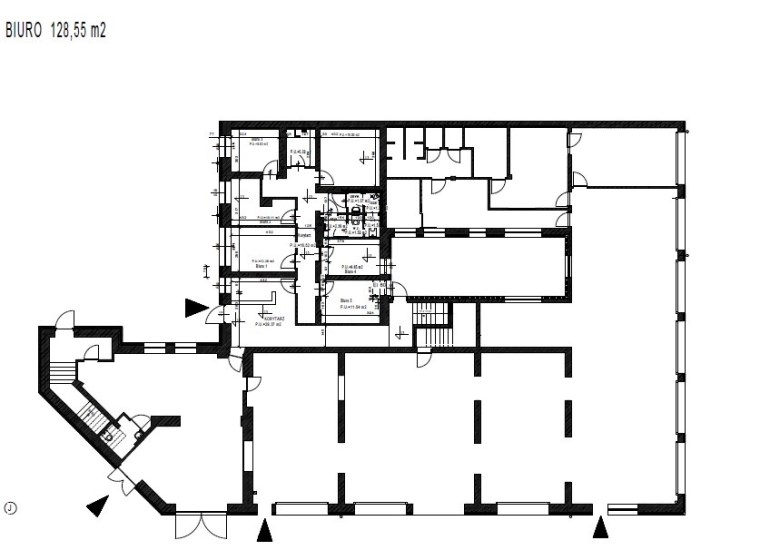
Parter (128,55 m2): 6 pomieszczeń biurowych, kuchnia, 2x WC, recepcja.
Piętro 1 (134,96 m2): 8 pomieszczeń biurowych biurowych, kuchnia, 2x WC.

Budynek wyposażony w podłogi podniesione, sufity podwieszane, monitoring, system alarmowy, kontrolę dostępu, światłowód, klimatyzację, regulację temperatury w każdym pomieszczeniu. Do dyspozycji najemcy 9 naziemnych miejsc parkingowych. Dodatkowo opcja wynajęcia większej liczby miejsc parkingowych.

Dla nieruchomości sporządzono świadectwo charakterystyki energetycznej: EU= 51,87; EK= 54,20; EP= 99,05; Eco2= 0,01; Uoze= 0%. 

Koszty najmu: 14 000 PLN netto + media.
Kaucja dwumiesięczna. 

Dane kontaktowe do agenta: Agnieszka Pankanin Tel: 888-889-659 E-mail: ap@properco.pl
---

For rent: 4 office modules with a total area of 263,51 m2, located in a modern office building in Bielany. The building was completed in 2023, finished to class A standard.

Surface distribution:
Ground floor (128.55 m2): 6 office rooms, kitchen, 2x WC, reception.
1st floor (134.96 m2): 8 office rooms, kitchen, 2x WC.
 

The building is equipped with raised floors, suspended ceilings, monitoring, alarm system, access control, fiber optic, air conditioning, temperature control in each room. The tenant has access to 9 ground parking spaces. Additionally, there is an option to rent more parking spaces.

An energy performance certificate has been prepared for the property: EU = 51.87; EK = 54.20; EP = 99.05; Eco2 = 0.01; Uoze = 0%.

Rental costs: 14,000 PLN net  + utilities. Two-month deposit.

For English service, contact Jacek: +48 888-889-441, jacek.kotlarz@properco.pl

Informacje ogólne

  • Nr oferty
    PRP-LW-73077
  • Rodzaj
  • Lokalizacja
    Warszawa
  • Dzielnica
    Bielany
  • Rodzaj budynku
    biurowiec
  • Pow. całkowita [m2]
    263.51
  • Piętro
    parter
  • Liczba pięter w budynku
    2
  • Cena:
    14 000 PLN
  • Cena za m2
    53 PLN

Nieruchomości

Liczba pięter w budynku
2
Okna
aluminiowe
Powierzchnia użytkowa [m2]
263.51
Rok budowy
2023
Winda
nie
Stan lokalu
bardzo dobry
Przeznaczenie lokalu
biurowy
Instalacje
Takdobre
Dojazd
asfalt
Ogrzewanie
gazowe
Klimatyzacja
Tak
Własny parking
Tak

Pomieszczenia

Wysokość pomieszczeń
3
PROPERCO sp. z o.o. sp.k
Osoba
do kontaktu
Agnieszka Pankanin +48 888 889 659 ap@properco.pl

Nr oferty: PRP-LW-73077

Dlaczego my?

Pomagamy w załatwianiu formalności
Pomagamy w załatwianiu formalności
Pomagamy w finansowaniu
Pomagamy w finansowaniu
Profesjonalne sesje zdjęciowe
Profesjonalne sesje zdjęciowe
Oferujemy home staging
Oferujemy home staging