Warszawa: 888 889 661
ul. Brylowska 2/3B
Kielce: 692 024 827
ul. Kozia 3a/1
pl

Kielce, Pod Dalnią, Naruszewicza

105.34 m2 Pokoje: 4 7 870 PLN/m2 829 000 PLN

Opis oferty

Na sprzedaż tani w utrzymaniu (energooszczędny), 4 - pokojowy, dwupoziomowy apartament, o pow. 105,34 m2, usytuowany na piętrze i poddaszu budynku zlokalizowanego w nowej inwestycji położonej na osiedlu Pod Dalnią, przy ul. Naruszewicza. Apartament oferowany w standardzie deweloperskim.
 

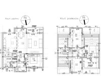
W skład apartamentu wchodzą:

Piętro:

- salon z aneksem kuchennym (41,56 m2)
- pokój (10,28 m2)
- łazienka (5,36 m2)
- klatka schodowa (5,59 m2(4,93))
- komunikacja (5,21 m2).


Poddasze:

- komunikacja (9,95 m2),
- pokój (9,11 m2)
- pokój (10,55 m2 )
- łazienka (6,16m2)
- pomieszczenie gospodarcze (2,23m2).

Apartamenty wyposażone są w nowoczesne rozwiązania gwarantujące zoptymalizowanie kosztów utrzymania - wentylacja z rekuperacją, indywidualne pompy ciepłaindywidualne ogrzewanie podłogowe w każdym z pomieszczeń mieszkania. Brak czynszu administracyjnego.


Miejsca postojowe zewnętrzne w cenie 18 000 PLN. 
Istnieje możliwość zakupu 2 miejsc postojowych do jednego mieszkania.

Planowany termin ukończenia inwestycji: II kwartał 2025r.
Kupujący zwolniony z kosztów obsługi biura i podatku PCC. Wynagrodzenie biura pokrywa strona sprzedająca.


Ta inwestycja to nowe, dobrze zaprojektowane, zamknięte osiedle energooszczędnych, dwulokalowych domów w zabudowie szeregowej. W pobliżu znajdują się trasy rowerowe, rezerwat skalny Ślichowice, przystanki autobusowe, szkoły i przedszkola. Możliwość indywidualnej personalizacji / aranżacji układu wnętrz mieszkań.

Adres strony internetowej, o którym mowa w art. 19a ust. 3 ustawy z dnia 20 maja 2021 r. o ochronie praw nabywcy lokalu mieszkalnego lub domu jednorodzinnego oraz Deweloperskim Funduszu Gwarancyjnym to naruszewicza76(kropka)pl. Adres strony został ujęty fonetycznie.

Sprzedaż inwestycji prowadzi biuro PROPERCO.pl Nieruchomości - Kielce, ul. Kozia 3A/1
 
Dane kontaktowe do agenta: Jacek Kotlarz, tel: 888 889 441, e-mail: jacek.kotlarz@properco.pl
For more information in English please call: 888 889 441, e-mail: jacek.kotlarz@properco.pl

Informacje ogólne

  • Nr oferty
    PRP-MS-70347
  • Rodzaj
  • Lokalizacja
    Kielce, Naruszewicza
  • Dzielnica
    Pod Dalnią
  • Rodzaj budynku
    szeregowiec
  • Pow. całkowita [m2]
    105.34
  • Piętro
    1p
  • Liczba pięter w budynku
    2
  • Cena:
    829 000 PLN
  • Cena za m2
    7 870 PLN

Nieruchomości

Liczba pięter w budynku
2
Rodzaj mieszkania
Apartament
Okna
PCV
Balkon
jest
Powierzchnia użytkowa [m2]
105.34
Rok budowy
2024
Winda
nie
Technologia budowlana
beton, gazobeton
Stan lokalu
deweloperski
Instalacje
Taknowe
Woda
jest
Dojazd
asfalt
Ogrzewanie
pompa ciepła

Pomieszczenia

Pokoje
4
Wysokość pomieszczeń
0
Liczba WC
2
Liczba przedpokoi
2
Kuchnia
Typ pomieszczenia
aneks kuchenny - połączony z salonem
Lazienka
Typ pomieszczenia
razem z wc
Wc
Liczba
2
Przedpokoj
Liczba
2
PROPERCO sp. z o.o. sp.k
Osoba
do kontaktu
Jacek Kotlarz +48 888 889 441 jacek.kotlarz@properco.pl

Nr oferty: PRP-MS-70347

Dlaczego my?

Pomagamy w załatwianiu formalności
Pomagamy w załatwianiu formalności
Pomagamy w finansowaniu
Pomagamy w finansowaniu
Profesjonalne sesje zdjęciowe
Profesjonalne sesje zdjęciowe
Oferujemy home staging
Oferujemy home staging