Warszawa: 888 889 661
ul. Brylowska 2/3B
Kielce: 692 024 827
ul. Kozia 3a/1
pl

Kielce, Centrum

225.16 m2 40 PLN/m2 8 900 PLN

Opis oferty

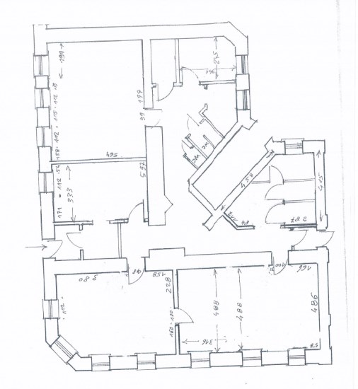
Do wynajęcia lokal o pow. 225,16 m2 położony w ścisłym centrum miasta na parterze dwupiętrowej kamienicy.

W lokalu prowadzona była działalność przedszkolna. Z uwagi na jego wyposażenie jest przygotowany na kontynuację tego rodzaju działalności. Może także stanowić miejsce do prowadzenia szkoły językowej.
Istnieje możliwość adaptacji pomieszczeń poprzez przestawienie / usunięcie ścianek lekkiej konstrukcji w celu uzyskania nowej funkcjonalności.

Meble widoczne na zdjęciach mogą podlegać sprzedaży.

Lokal ogrzewany za pomocą pieca gazowego dwufunkcyjnego. Posiada 2 wejścia, wysokość ok. 3m.
Lokal może być także przeznaczony na gastronomię, po uzyskaniu stosownych pozwoleń.
Możliwość parkowania na prywatnej posesji dla 2 samochodów, pozostałe - na miejscach ogólnodostępnych.

Koszty: czynsz najmu: 8 900 PLN + prąd, gaz wg wskazań licznika.
Kaucja jednomiesięczna. 

Dla lokalu nie sporządzono świadectwa charakterystyki energetycznej.

Dane kontaktowe do agenta: Dorota Pękalska - Perz Tel: 608-827-080 E-mail:  dorota.pekalska-perz@properco.pl
For service in English call Magdalena Prokopoudi at +48 888-889-594.

____


 

For rent: a 225.16 m² commercial unit located in the very centre of the city, on the ground floor of a two-storey tenement building.

The premises were previously used as a kindergarten. Due to its existing equipment, it is ready for the continuation of such activity. It can also be adapted for use as a language school.
There is a possibility to modify the layout by moving or removing lightweight partition walls to achieve a new functional arrangement.

Furniture visible in the photos may be available for purchase.

The premises are heated with a dual-function gas boiler. It has two entrances and a ceiling height of approximately 3 m.
The unit may also be adapted for gastronomy purposes, subject to obtaining the necessary permits.

Parking available on private premises for two cars; additional public parking spaces nearby.

Costs: rent – 8,900 PLN + electricity and gas according to meter readings.
Security deposit: one month’s rent.

An energy performance certificate has not been prepared for the premises.

For service in English call Magdalena Prokopoudi at +48 888-889-594.

Informacje ogólne

  • Nr oferty
    PRP-LW-75625
  • Rodzaj
  • Lokalizacja
    Kielce
  • Dzielnica
    Centrum
  • Rodzaj budynku
    kamienica
  • Pow. całkowita [m2]
    225.16
  • Piętro
    parter
  • Liczba pięter w budynku
    2
  • Cena:
    8 900 PLN
  • Cena za m2
    40 PLN

Nieruchomości

Liczba pięter w budynku
2
Okna
PCV
Powierzchnia użytkowa [m2]
225.16
Rok budowy
1930
Stan lokalu
do adaptacji
Przeznaczenie lokalu
biurowy, gastronomia, usługowy
Dojazd
kostka brukowa
Ogrzewanie
piec dwufunkcyjny
Drzwi antywłamaniowe
Tak
Usytuowanie
dwustronne
PROPERCO sp. z o.o. sp.k
Osoba
do kontaktu
Dorota Pękalska-Perz +48 608 827 080 dorota.pekalska-perz@properco.pl

Nr oferty: PRP-LW-75625

Dlaczego my?

Pomagamy w załatwianiu formalności
Pomagamy w załatwianiu formalności
Pomagamy w finansowaniu
Pomagamy w finansowaniu
Profesjonalne sesje zdjęciowe
Profesjonalne sesje zdjęciowe
Oferujemy home staging
Oferujemy home staging